Новости и акции компании
3-фазные асинхронные двигатели с короткозамкнутым ротором IP 23 IM1001
Двигатели соответствуют стандартам ГОСТ 31606
| Мощность Rated output kW | Тип Type | Частота вращения Rated speed min-1 | КПД Efficiency | Коэф. мощности Power factor cos j | Ток при 380 В Current at 380 V A | I пуск IН IA/IN | Mпуск MН MA/MN | Mмакс MН MK/MN | Масса Mass kg |
| 3000 об/мин (2 полюса) 3000 min-1 (2 pole) | |||||||||
| 22 | 4AMH160S2 | 2925 | 88.0 | 0.87 | 44 | 7.0 | 1.4 | 2.4 | 110 |
| 30 | 4AMH160M2 | 2910 | 90.0 | 0.89 | 57 | 7.0 | 1.6 | 2.4 | 130 |
| 1500 об/мин (4 полюса) 1500 min-1 (4 pole) | |||||||||
| 18 | 4AMH160S4 | 1460 | 88.5 | 0.87 | 36 | 6.5 | 1.6 | 2.1 | 115 |
| 22 | 4AMH160M4 | 1460 | 90.0 | 0.88 | 42 | 6.5 | 2.0 | 2.3 | 135 |
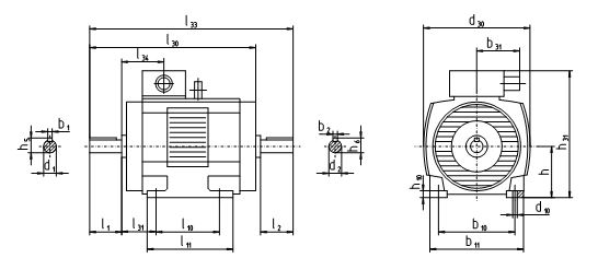
Габаритный чертеж IM 1001 (IM B3)

Размеры в мм
| Тип Type | Число полюсов No. of poles | ГОСТ l 30 DIN k | l 33 k1 | h 31 p | d 30 g | l 1 l | l 2 l 1 | l 10 a | l 11 e | l 31 w1 | l 34 q | d 1 d | d 2 d1 | d 10 s | b 1 u | b 2 u1 | b 10 b | b 11 f | b 31 g1 | h h | h 5 t | h 6 t1 | h 10 c |
| 4АМН160S 4АМН160S | 2 | 558 | 675 | 430 | 340 | 110 | 110 | 178 | 218 | 108 | 135 | 42 | 42 | 15 | 12 | 12 | 254 | 304 | 205 | 160 | 45 | 45 | 18 |
| 4 | 558 | 675 | 430 | 340 | 110 | 110 | 178 | 250 | 108 | 135 | 48 | 42 | 15 | 12 | 12 | 254 | 304 | 205 | 160 | 51.5 | 45 | 18 | |
| 4АМН160M 4АМН160M | 2 | 601 | 718 | 430 | 340 | 110 | 110 | 210 | 218 | 108 | 135 | 42 | 42 | 15 | 14 | 12 | 254 | 304 | 205 | 160 | 45 | 45 | 18 |
| 4 | 601 | 718 | 430 | 340 | 110 | 110 | 210 | 250 | 108 | 135 | 48 | 42 | 15 | 14 | 12 | 254 | 304 | 205 | 160 | 51.5 | 45 | 18 |
Купить 3-фазные асинхронные двигатели IP 23 в регионе Ярославль.