Технический паспорт
Характеристики


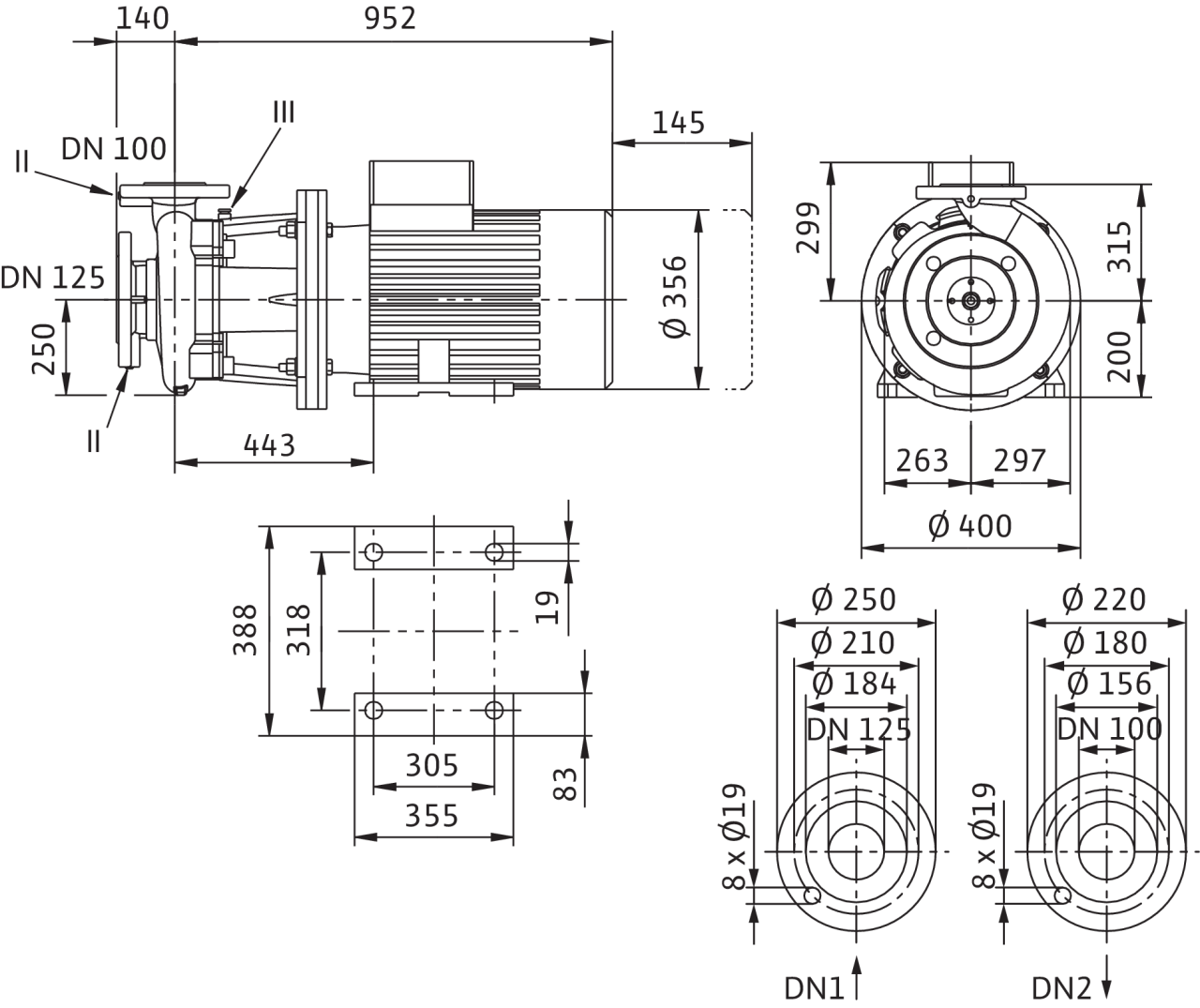
II отверстие для измерения давления R1/8; III удаление воздуха R1/8
Схема подключения

Δ: Схема соединения – треугольник
Y: Схема соединения – звезда
Защитный выключатель электродвигателя должен предоставляться заказчиком. Контролировать направление вращения! Для изменения направления вращения поменять местами любые две фазы.
| P2 ≤ 3 кВт | 3~400 В Y |
| 3~230 В Δ | |
| P2 ≥ 4 кВт | 3~690 В Y |
| 3~400 В Δ |
После удаления перемычек возможен запуск Y-Δ.
| Допустимая перекачиваемая среда (другие среды по запросу) | |
|---|---|
| Вода систем отопления (согласно VDI 2035) | • |
| Водогликолевая смесь (при доле гликоля 20-40 об. % и температуре перекачиваемой среды ≤ 40 В°C) | • |
| Охлаждающая и холодная вода | • |
| Допустимая область применения | |
| Стандартное исполнение для рабочего давления pмакс | 13 бар (до +140 В°C) бар 16 бар (до +120 В°C) бар |
| Диапазон температур при макс. температуре окружающей среды +40 В°C | -20...+140 В°C (в зависимости от перекачиваемой среды) |
| Температура окружающей среды, макс. | +40 В°C |
| Установка в закрытых помещениях | • |
| Подсоединения к трубопроводу | |
| Номинальный внутренний диаметр фланца (на стороне всасывания) | DN 125 |
| Номинальный внутренний диаметр фланца (с напорной стороны) | DN 100 |
| Фланцы (по EN 1092-2) | PN 16 |
| Фланец с отверстием для манометра | R |
| Материалы | |
| Корпус насоса | EN-GJL-250 |
| Промежуточный корпус | EN-GJL-250 |
| Рабочее колесо | EN-GJL-200 |
| Вал насоса | 1.4122 |
| Скользящее торцевое уплотнение | AQEGG |
| Электроподключение | |
| Номинальная частота вращения n | 1450 об/мин |
| Подключение к сети | 3~400 В, 50 Гц |
| Минимальный индекс эффективности (MEI) | |
| Минимальный индекс эффективности (MEI) | ≥ 0.40 |
| Насос с макс. диаметром рабочего колеса для определения MEI | BL100/345-30/4 |
| Мотор/электроника | |
| Встроенная полная защита мотора | Специальное исполнение с термодатчиками за дополнительную плату |
| Степень защиты | IP 55 |
| Класс изоляции | F |
| Подключение к сети | 3~400 В, 50 Гц |
| Класс эффективности мотора | IE3 |
| Номинальный ток (прим.) IN 3~400 В | 55.5 A |
| КПД электродвигателя ηm 50% /ηm 75% /ηm 100% | 92,2/93,0/93,6 % |
| КПД ηM | 0.94 |
| Коэффициент мощности cos φ | 0.86 |
| Номинальная мощность электродвигателя P2 | 30 кВт |
| Номинальная частота вращения n | 1,450 об/мин |
| Данные для заказа | |
| Изделие | Wilo |
| Арт.-№ | 2142030 |
| Тип | CronoBloc-BL 100/330-30/4 |
| Вес, прим. m | 420.8 кг |
Размеры и габаритные чертежи
Габаритный чертеж

II отверстие для измерения давления R1/8; III удаление воздуха R1/8
Характеристики
Характеристики
4-полюсный, 50 Гц

Данные для заказа
| Данные для заказа | |
|---|---|
| Изделие | Wilo |
| Тип | CronoBloc-BL 100/330-30/4 |
| Арт.-№ | 2142030 |
| Номер EAN | 4048482442983 |
| Цвет | зеленый |
| Минимальное количество для заказа | 1 |
| Единица минимального кол-ва для заказа | PCE |
| Вес (нетто) kg | 420.8 |
| Длина (нетто) mm | 1109 |
| Ширина (нетто) mm | 560 |
| Высота (нетто) mm | 565 |
| Вес (брутто) kg | 391 |
| Длина (брутто) mm | 1200 |
| Ширина (брутто) mm | 800 |
| Высота (брутто) mm | 709 |
| Вид упаковки | Европоддон |
| Свойства упаковки | Транспортировочная упаковка |
| Штук на поддон | 1 |
| Количество на один слой | 1 |
Описание изделия
Полный текст
Одноступенчатый центробежный насос с сухим ротором блочного типа для установки на фундаменте. Блочное исполнение с низким уровнем шума и вибрации с промежуточным корпусом и неподвижно присоединенным унифицированным (стандартным) электродвигателем. С не зависящим от направления вращения сильфонным скользящим торцевым уплотнением (от 37 кВт/4-контактного и 45 кВт/2-контактного с картриджным торцевым уплотнением в системе Back-Pull-Out для замены скользящего торцевого уплотнения без демонтажа электродвигателя) и снижающим кавитацию рабочим колесом. Фланцы имеют штуцеры R 1/8 для измерения давления. На корпус насоса и промежуточный корпус нанесено катафорезное покрытие. Серийные электродвигатели с технологией IE3.
| Материалы | |
|---|---|
| Корпус насоса | EN-GJL-250 |
| Промежуточный корпус | EN-GJL-250 |
| Рабочее колесо | EN-GJL-200 |
| Вал насоса | 1.4122 |
| Скользящее торцевое уплотнение | AQEGG |
| Допустимая область применения | |
| Стандартное исполнение для рабочего давления pмакс | 13 бар (до +140 В°C) бар 16 бар (до +120 В°C) бар |
| Диапазон температур при макс. температуре окружающей среды +40 В°C | -20...+140 В°C (в зависимости от перекачиваемой среды) |
| Температура окружающей среды, макс. | +40 В°C |
| Минимальный индекс эффективности (MEI) | |
| Минимальный индекс эффективности (MEI) | ≥ 0.40 |
| Насос с макс. диаметром рабочего колеса для определения MEI | BL100/345-30/4 |
| Мотор/электроника | |
| Встроенная полная защита мотора | Специальное исполнение с термодатчиками за дополнительную плату |
| Степень защиты | IP 55 |
| Класс изоляции | F |
| Подключение к сети | 3~400 В, 50 Гц |
| Класс эффективности мотора | IE3 |
| Номинальный ток (прим.) IN 3~400 В | 55.5 A |
| КПД электродвигателя ηm 50% /ηm 75% /ηm 100% | 92,2/93,0/93,6 % |
| КПД ηM | 0.94 |
| Коэффициент мощности cos φ | 0.86 |
| Номинальная мощность электродвигателя P2 | 30 кВт |
| Номинальная частота вращения n | 1,450 об/мин |
| Вес | |
| Вес, прим. m | 420.8 кг |
| Данные для заказа | |
| Тип | CronoBloc-BL 100/330-30/4 |
| Арт.-№ | 2142030 |
Купить BL 100/330-30/4 в регионе Ярославль.