Технический паспорт
Характеристики
двухполюсный.

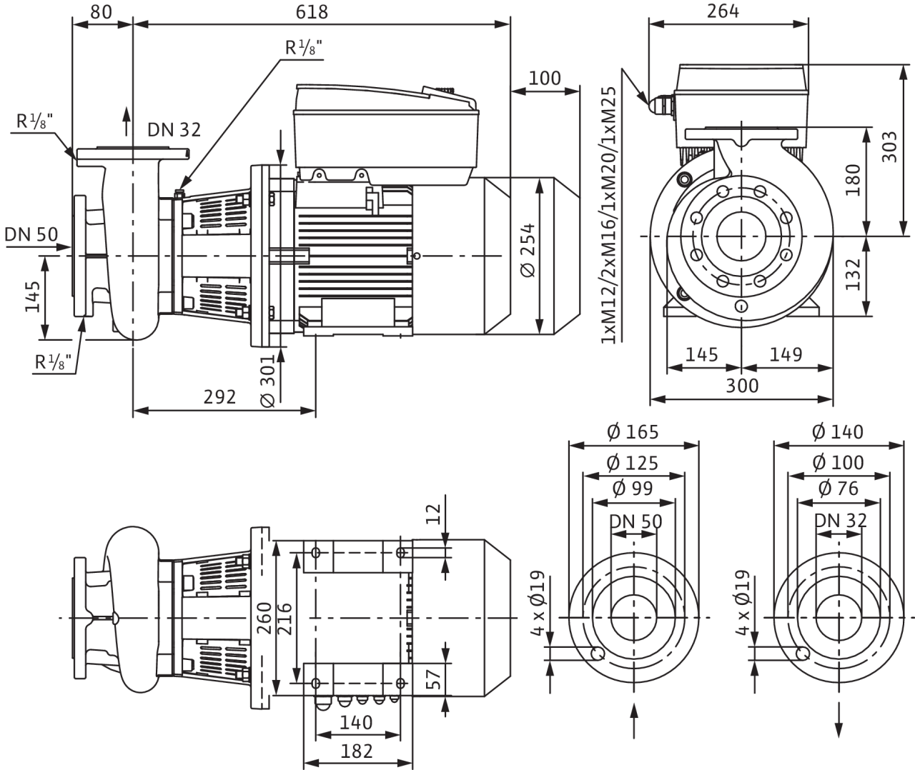
Габаритный чертеж


| Допустимая перекачиваемая среда (другие среды по запросу) | |
|---|---|
| Вода систем отопления (согласно VDI 2035) | • |
| Водогликолевая смесь (при доле гликоля 20-40 об. % и температуре перекачиваемой среды ≤ 40 В°C) | • |
| Охлаждающая и холодная вода | • |
| Масляный теплоноситель | Специальное исполнение за дополнительную плату |
| Допустимая область применения | |
| Стандартное исполнение для рабочего давления pмакс | 13 бар (до +140 В°C) бар 16 бар (до +120 В°C) бар |
| Специальное исполнение для рабочего давления pмакс. | - бар |
| Диапазон температур при макс. температуре окружающей среды +40 В°C | -20...+140 В°C (в зависимости от перекачиваемой среды) |
| Температура окружающей среды, макс. | +40 В°C |
| Установка в закрытых помещениях | • |
| Установка в открытых помещениях | - |
| Подсоединения к трубопроводу | |
| Номинальный внутренний диаметр DN1 | 50 |
| Номинальный внутренний диаметр DN2 | 32 |
| Фланец с отверстием для манометра | R |
| Материалы | |
| Корпус насоса | EN-GJL-250 |
| Промежуточный корпус | EN-GJL-250 |
| Рабочее колесо | EN-GJL-200 |
| Рабочее колесо (специальное исполнение) | G-CuSn10 |
| Вал насоса | 1.4122 |
| Скользящее торцевое уплотнение | AQEGG |
| другие скользящие торцевые уплотнения | по запросу |
| Электроподключение | |
| Подключение к сети | 3~440 V В±10%, 50/60 Hz 3~400 V В±10%, 50/60 Hz 3~380 V -5%/+10%, 50/60 Hz |
| Диапазон частоты вращения | 750-2900 об/мин |
| Минимальный индекс эффективности (MEI) | |
| Минимальный индекс эффективности (MEI) | ≥ 0.40 |
| Насос с макс. диаметром рабочего колеса для определения MEI | BL32/220-11/2 |
| Мотор/электроника | |
| Технология мотора | Асинхронный мотор |
| Класс эффективности мотора | IE4 |
| Встроенная полная защита мотора | • |
| Степень защиты | IP 55 |
| Класс изоляции | F |
| Создаваемые помехи | EN 61800-3 |
| Помехозащищенность | EN 61800-3 |
| Устройство защитного отключения | • |
| Число полюсов | 2 |
| Номинальный ток (прим.) IN 3~400 В | 13.5 A |
| Макс. потребляемая мощность P1 | 8.6 кВт |
| Номинальная мощность электродвигателя P2 | 7.5 кВт |
| Варианты монтажа | |
| Монтаж на трубопроводе (при мощности мотора до ≤ 15 кВт) | • |
| Монтаж на консолях | • |
| Данные для заказа | |
| Вес, прим. m | 105 кг |
| Изделие | Wilo |
| Тип | CronoBloc-BL-E 32/210-7,5/2-R1 |
| Арт.-№ | 2159702 |
Размеры и габаритные чертежи
Габаритный чертеж

Характеристики
Характеристики
двухполюсный.

Схема подключения
Схема подключения

| L1, L2, L3: | Подключение к сети: 3~440 В В±10 %, 50/60 Гц; 3~400 В В±10 %, 50/60 Гц; 3~380 В -5 %/+10 %, 50/60 Гц |
| PE: | Подключение заземляющего провода |
| DDG: | Подключение дифференциального датчика давления |
| In1 (1): | Вход фактического значения 0 - 10 В/0 - 20 мА; 2 - 10 В/4 - 20 мА |
| GND (2): | Общий контакт для In1 и In2 |
| + 24 В (3): | Выход постоянного напряжения для внешнего потребителя/датчика. Макс. нагрузка 60 мА |
| In2: | Вход заданного значения 0 - 10 В/0 - 20 мА; 2 - 10 В/4 - 20 мА |
| MP: | Multi Pump, интерфейс для управления сдвоенным насосом |
| Ext. off: | Управляющий вход «Выкл. по приоритету» Посредством внешнего беспотенциального контакта насос можно включить или выключить (24 В пост. тока/10 мА). |
| SBM:* | беспотенциальная обобщенная сигнализация рабочего состояния (переключающий контакт по VDI 3814) |
| SSM:* | беспотенциальная обобщенная сигнализация неисправности (переключающий контакт по VDI 3814) |
| AUX: | Внешняя смена работы насосов (только в режиме работы - сдвоенного насоса). Посредством внешнего беспотенциального контакта можно провести смену насосов (24 В пост. тока/10 мА) |
| Микропереключатель: | 1: Переключение между рабочим (O) и сервисным (S) режимами) 2: активация/дезактивация меню для блокировки доступа |
| Опция: | IF-модули для подключения к автоматизированной системе управления зданием |
| <p>* Допустимая нагрузка на контакты SBM и SSM:</p><p>мин.: 12 В пост. тока/10 мА</p><p>макс.: 250 В перем. тока/1 A</p> | |
Данные для заказа
| Данные для заказа | |
|---|---|
| Изделие | Wilo |
| Тип | CronoBloc-BL-E 32/210-7,5/2-R1 |
| Арт.-№ | 2159702 |
| Номер EAN | 4048482698038 |
| Цвет | зеленый |
| Минимальное количество для заказа | 1 |
| Единица минимального кол-ва для заказа | PCE |
| Вес (нетто) kg | 105 |
| Длина (нетто) mm | 698 |
| Ширина (нетто) mm | 300 |
| Высота (нетто) mm | 454 |
| Вес (брутто) kg | 110 |
| Длина (брутто) mm | 790 |
| Ширина (брутто) mm | 400 |
| Высота (брутто) mm | 574 |
| Вид упаковки | Одноразовый поддон |
| Свойства упаковки | Транспортировочная упаковка |
| Штук на поддон | 1 |
| Количество на один слой | 1 |
Описание изделия
Полный текст
Одноступенчатый центробежный насос с сухим ротором блочного типа для установки на фундаменте со встроенным частотным преобразователем для электронного регулирования в т. ч. постоянного перепада давления (Δp-c). Насос можно эксплуатировать в режиме работы Δp-c только с внешним дифференциальным датчиком давления (комплект дифференциального датчика давления); его подключение не выполняется на корпусе насоса. Устройство CronoBloc-BL-E предназначено для перекачивания воды систем отопления (согласно VDI 2035), холодной воды и водогликолевых смесей без абразивных веществ в системах отопления, кондиционирования и охлаждения.
Конструкция
Серийное оснащение
Экран насоса для индикации следующих параметров:
Однокнопочная панель управления для следующих функций:
Преимущества
Принадлежности
| Материалы | |
|---|---|
| Корпус насоса | EN-GJL-250 |
| Промежуточный корпус | EN-GJL-250 |
| Рабочее колесо | EN-GJL-200 |
| Вал насоса | 1.4122 |
| Скользящее торцевое уплотнение | AQEGG |
| Допустимая область применения | |
| Стандартное исполнение для рабочего давления pмакс | 13 бар (до +140 В°C) бар 16 бар (до +120 В°C) бар |
| Диапазон температур при макс. температуре окружающей среды +40 В°C | -20...+140 В°C (в зависимости от перекачиваемой среды) |
| Температура окружающей среды, макс. | +40 В°C |
| Подсоединения к трубопроводу | |
| Фланцы (по EN 1092-2) | PN 16 (PN25 по запросу) |
| Фланец с отверстием для манометра | R |
| Минимальный индекс эффективности (MEI) | |
| Минимальный индекс эффективности (MEI) | ≥ 0.40 |
| Насос с макс. диаметром рабочего колеса для определения MEI | BL32/220-11/2 |
| Мотор/электроника | |
| Встроенная полная защита мотора | • |
| Класс эффективности мотора | IE4 |
| Степень защиты | IP 55 |
| Класс изоляции | F |
| Создаваемые помехи | EN 61800-3 |
| Помехозащищенность | EN 61800-3 |
| Подключение к сети | 3~440 В, 50/60 Гц 3~400 В, 50/60 Гц 3~380 В, 50/60 Гц |
| Частота вращения N | 750 - 2900 об/мин |
| Число полюсов | 2 |
| Номинальный ток (прим.) IN 3~400 В | 13.50 A |
| Макс. потребляемая мощность P1 | 8.6 кВт |
| Номинальная мощность электродвигателя P2 | 7.5 кВт |
| Вес | |
| Вес, прим. m | 105 кг |
| Данные для заказа | |
| Арт.-№ | 2159702 |
| Тип | CronoBloc-BL-E 32/210-7,5/2-R1 |
| Изделие | Wilo |
Купить BL-E 32/210-7,5/2-R1 в регионе Ярославль.