Технический паспорт
Характеристики

| Допустимая перекачиваемая среда (другие среды по запросу) | |
|---|---|
| Вода систем отопления (согласно VDI 2035) | • |
| Водогликолевая смесь (при доле гликоля 20-40 об. % и температуре перекачиваемой среды ≤ 40 В°C) | (начиная с доли гликоля 10 об. %: требуется проверка мощности; до 50% гликоля: скользящее торцевое уплотнение по запросу) |
| Охлаждающая и холодная вода | • |
| Допустимая область применения | |
| Стандартное исполнение для рабочего давления pмакс | 16 бар |
| Диапазон температур при макс. температуре окружающей среды +40 В°C | -20...+120В°C (исполнение со скользящим торцевым уплотнением) -20...+105В°C (исполнение с сальниковым уплотнением) |
| Температура окружающей среды, макс. | +40 В°C |
| Установка в закрытых помещениях | • |
| Подсоединения к трубопроводу | |
| Номинальный внутренний диаметр фланца (на стороне всасывания) | DN 125 |
| Номинальный внутренний диаметр фланца (с напорной стороны) | DN 100 |
| Материалы | |
| Корпус насоса | EN-GJL-250 |
| Промежуточный корпус | EN-GJL-250 |
| Рабочее колесо | EN-GJL-250 |
| Вал насоса | X30Cr13 |
| Скользящее торцевое уплотнение | AQ1EGG |
| Минимальный индекс эффективности (MEI) | |
| Минимальный индекс эффективности (MEI) | ≥ 0.4 |
| Мотор/электроника | |
| Степень защиты | IP 55 |
| Класс изоляции | F |
| Размер электродвигателя | 100L MG |
| Число полюсов | 4 |
| Номинальная мощность электродвигателя P2 | 3 кВт |
| Номинальный ток (прим.) IN 3~400 В | 6.15 A |
| Коэффициент мощности cos φ | 0.80 |
| КПД мотора ηm 100% | 88 % |
| КПД мотора ηm 75% | 88 % |
| КПД мотора ηm 50% | 87 % |
| Данные для заказа | |
| Изделие | Wilo |
| Арт.-№ | 4109304 |
| Тип | CronoNorm-NL 100/160 |
| Вес, прим. m | 233 кг |
Размеры и габаритные чертежи
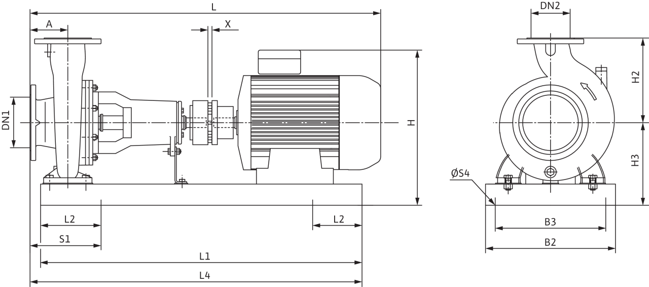
Габаритный чертеж

Номинальный внутренний диаметр DN1
125Номинальный внутренний диаметр DN2
100Размеры A
125 ммРазмеры B2
490 ммРазмеры B3
440 ммРазмеры H2
280 ммРазмеры H3
303 ммРазмеры L
1018 ммРазмеры L1
1150 ммРазмеры L2
205 ммРазмеры L4
1170 ммРазмеры S1
225 ммРазмеры Г?S4
24 ммРазмеры X
3 ммХарактеристики
Характеристики

Описание изделия
Полный текст
Одноступенчатый центробежный насос в качестве насоса на опорной раме согласно стандарту EN 733, с осевым всасывающим патрубком и радиальным напорным патрубком, для установки на фундаменте. Насос с опорой и прифланцованной опорой подшипника, упругой муфтой/съемной муфтой (за дополнительную плату), кожухом муфты и электродвигателем, установленными на общей опорной раме.
Электродвигатель IEC с 3 термодатчиками. Уплотнение вала посредством скользящего торцового уплотнения до температуры 120 В°C. Корпус из серого чугуна, вал из нержавеющей стали, рабочее колесо из серого чугуна (рабочее колесо из бронзы доступно за дополнительную плату). Электродвигатели с технологией IE3.
| Материалы | |
|---|---|
| Корпус насоса | EN-GJL-250 |
| Промежуточный корпус | EN-GJL-250 |
| Рабочее колесо | EN-GJL-250 |
| Вал насоса | X30Cr13 |
| Скользящее торцевое уплотнение | AQ1EGG |
| Допустимая область применения | |
| Стандартное исполнение для рабочего давления pмакс | 16 бар |
| Диапазон температур при макс. температуре окружающей среды +40 В°C | -20...+120В°C (исполнение со скользящим торцевым уплотнением) -20...+105В°C (исполнение с сальниковым уплотнением) |
| Температура окружающей среды, макс. | +40 В°C |
| Установка в закрытых помещениях | • |
| Подсоединения к трубопроводу | |
| Номинальный внутренний диаметр фланца (на стороне всасывания) | DN 125 |
| Номинальный внутренний диаметр фланца (с напорной стороны) | DN 100 |
| Минимальный индекс эффективности (MEI) | |
| Минимальный индекс эффективности (MEI) | ≥ 0.4 |
| Мотор/электроника | |
| Степень защиты | IP 55 |
| Класс изоляции | F |
| Размер электродвигателя | 100L MG |
| Число полюсов | 4 |
| Номинальная мощность электродвигателя P2 | 3 кВт |
| Номинальный ток (прим.) IN 3~400 В | 6.15 A |
| Коэффициент мощности cos φ | 0.80 |
| КПД мотора ηm 100% | 88 % |
| КПД мотора ηm 75% | 88 % |
| КПД мотора ηm 50% | 87 % |
| Вес | |
| Вес, прим. m | 233 кг |
| Данные для заказа | |
| Тип | CronoNorm-NL 100/160 |
| Арт.-№ | 4109304 |
| Изделие | Wilo |
Купить CronoNorm-NL 100/160-3/4 в регионе Ярославль.