Технический паспорт
Характеристики

| Допустимая перекачиваемая среда (другие среды по запросу) | |
|---|---|
| Вода систем отопления (согласно VDI 2035) | • |
| Водогликолевая смесь (при доле гликоля 20-40 об. % и температуре перекачиваемой среды ≤ 40 В°C) | (начиная с доли гликоля 10 об. %: требуется проверка мощности; до 50% гликоля: скользящее торцевое уплотнение по запросу) |
| Охлаждающая и холодная вода | • |
| Допустимая область применения | |
| Стандартное исполнение для рабочего давления pмакс | 16 бар |
| Диапазон температур при макс. температуре окружающей среды +40 В°C | -20...+120В°C (исполнение со скользящим торцевым уплотнением) -20...+105В°C (исполнение с сальниковым уплотнением) |
| Температура окружающей среды, макс. | +40 В°C |
| Установка в закрытых помещениях | • |
| Подсоединения к трубопроводу | |
| Номинальный внутренний диаметр фланца (на стороне всасывания) | DN 200 |
| Номинальный внутренний диаметр фланца (с напорной стороны) | DN 150 |
| Фланец с отверстием для манометра | R |
| Материалы | |
| Корпус насоса | EN-GJS-500-7 |
| Рабочее колесо | EN-GJL-250 |
| Вал насоса | 1.4028 [AISI420F] |
| Скользящее торцевое уплотнение | AQ1EGG |
| Минимальный индекс эффективности (MEI) | |
| Минимальный индекс эффективности (MEI) | ≥ 0.4 |
| Мотор/электроника | |
| Встроенная полная защита мотора | Серийный термодатчик |
| Степень защиты | IP 55 |
| Класс изоляции | F |
| Размер электродвигателя | 315S/M MG |
| Число полюсов | 4 |
| Номинальная мощность электродвигателя P2 | 132 кВт |
| Номинальный ток (прим.) IN 3~400 В | 231 A |
| Коэффициент мощности cos φ | 0.86 |
| КПД мотора ηm 100% | 95.8 % |
| КПД мотора ηm 75% | 95.7 % |
| КПД мотора ηm 50% | 95.1 % |
| Данные для заказа | |
| Изделие | Wilo |
| Арт.-№ | 4460460 |
| Тип | CronoNorm-NLG 150/520-132/4 |
| Вес, прим. m | 1820 кг |
Размеры и габаритные чертежи
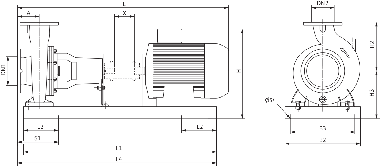
Габаритный чертеж

Номинальный внутренний диаметр DN1
200Номинальный внутренний диаметр DN2
150Размеры A
170 ммРазмеры B2
860 ммРазмеры B3
790 ммРазмеры H
968 ммРазмеры H2
525 ммРазмеры H3
523 ммРазмеры L
2295 ммРазмеры L1
2140 ммРазмеры L2
370 ммРазмеры L4
2180 ммРазмеры S1
410 ммРазмеры Г?S4
29 ммРазмеры X
180 ммХарактеристики
Характеристики

Описание изделия
Полный текст
Одноступенчатый центробежный насос в качестве насоса на опорной раме. С аксиальным всасывающим патрубком и радиальным напорным патрубком, для установки на фундамент. Насос с опорой и прифланцованной опорой подшипника, упругой съемной муфтой, кожухом муфты и электродвигателем, установленными на общей опорной раме.
Электродвигатель IEC с 3 термодатчиками. Уплотнение вала посредством скользящего торцового уплотнения до температуры 120 В°C. Корпус из чугуна с шаровидным графитом, вал из нержавеющей стали, рабочее колесо из серого чугуна (рабочее колесо из бронзы доступно за дополнительную плату). Электродвигатели с технологией IE3.
| Материалы | |
|---|---|
| Корпус насоса | EN-GJS-500-7 |
| Рабочее колесо | EN-GJL-250 |
| Вал насоса | 1.4028 [AISI420F] |
| Скользящее торцевое уплотнение | AQ1EGG |
| Допустимая область применения | |
| Стандартное исполнение для рабочего давления pмакс | 16 бар |
| Диапазон температур при макс. температуре окружающей среды +40 В°C | -20...+120В°C (исполнение со скользящим торцевым уплотнением) -20...+105В°C (исполнение с сальниковым уплотнением) |
| Температура окружающей среды, макс. | +40 В°C |
| Установка в закрытых помещениях | • |
| Подсоединения к трубопроводу | |
| Номинальный внутренний диаметр фланца (на стороне всасывания) | DN 200 |
| Номинальный внутренний диаметр фланца (с напорной стороны) | DN 150 |
| Фланец с отверстием для манометра | R |
| Минимальный индекс эффективности (MEI) | |
| Минимальный индекс эффективности (MEI) | ≥ 0.4 |
| Мотор/электроника | |
| Встроенная полная защита мотора | Серийный термодатчик |
| Степень защиты | IP 55 |
| Класс изоляции | F |
| Размер электродвигателя | 315S/M MG |
| Число полюсов | 4 |
| Номинальная мощность электродвигателя P2 | 132 кВт |
| Номинальный ток (прим.) IN 3~400 В | 231 A |
| Коэффициент мощности cos φ | 0.86 |
| КПД мотора ηm 100% | 95.8 % |
| КПД мотора ηm 75% | 95.7 % |
| КПД мотора ηm 50% | 95.1 % |
| Вес | |
| Вес, прим. m | 1820 кг |
| Данные для заказа | |
| Тип | CronoNorm-NLG 150/520-132/4 |
| Арт.-№ | 4460460 |
| Изделие | Wilo |
Купить CronoNorm-NLG 150/520-132/4 в регионе Ярославль.