Москва: +7 (495)
6696898
Санкт-Петербург: +7 (812)
3097686
Ярославль: +7 (4852)
644647
DL 125/250-11/4
Производитель — Wilo
Оценка (средняя 5)
Технический паспорт Характеристики 4-полюсный - работа одного насоса Габаритный чертеж II отверстие для измерения давления R 1 / 8 ; III удаление воздуха R 1 / 8 Схема подключения Δ: Схема соединения – треугольник Y: Схема соединения...
Запросить консультацию
Заказать продукцию
Характеристики
Характеристики — DL 125/250-11/4

Технический паспорт

Характеристики

4-полюсный - работа одного насоса

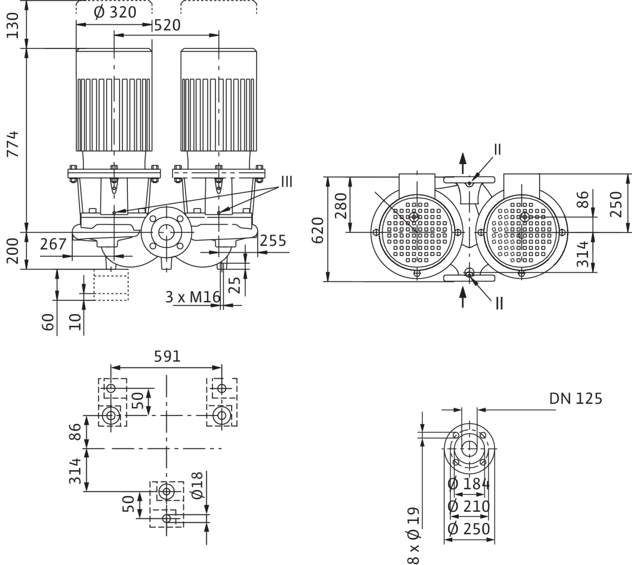
Габаритный чертеж

II отверстие для измерения давления R1/8; III удаление воздуха R1/8

Схема подключения

Δ: Схема соединения – треугольник

Y: Схема соединения – звезда

Защитный выключатель электродвигателя должен предоставляться заказчиком. Контролировать направление вращения! Для изменения направления вращения поменять местами любые две фазы.

P2 ≤ 3 кВт3~400 В Y
3~230 В Δ
P2 ≥ 4 кВт3~690 В Y
3~400 В Δ

После удаления перемычек возможен запуск Y-Δ.

Допустимая перекачиваемая среда (другие среды по запросу)
Вода систем отопления (согласно VDI 2035)
Водогликолевая смесь (при доле гликоля 20-40 об. % и температуре перекачиваемой среды ≤ 40 В°C)
Охлаждающая и холодная вода
Масляный теплоносительСпециальное исполнение за дополнительную плату
Допустимая область применения
Стандартное исполнение для рабочего давления pмакс13 бар (до +140 В°C) бар
16 бар (до +120 В°C) бар
Диапазон температур при макс. температуре окружающей среды +40 В°C-20...+140 В°C (в зависимости от перекачиваемой среды)
Температура окружающей среды, макс.+40 В°C
Установка в закрытых помещениях
Установка в открытых помещенияхСпециальное исполнение за дополнительную плату
Подсоединения к трубопроводу
Номинальный внутренний диаметр фланцаDN 125
Фланцы (по EN 1092-2)PN 16
Фланец с отверстием для манометраR 1/8
Материалы
Корпус насосаEN-GJL-250
Промежуточный корпусEN-GJL-250
Рабочее колесоEN-GJL-200
Рабочее колесо (специальное исполнение)G-CuSn10
Вал насоса1.4122
Скользящее торцевое уплотнениеAQEGG
другие скользящие торцевые уплотненияпо запросу
Электроподключение
Подключение к сети3~400 В, 50 Гц
Номинальная частота вращения n1450 об/мин
Минимальный индекс эффективности (MEI)
Минимальный индекс эффективности (MEI)≥ 0.40
Насос с макс. диаметром рабочего колеса для определения MEIIL125/270-15/4
Мотор/электроника
Встроенная полная защита мотораСпециальное исполнение с термодатчиками за дополнительную плату
Степень защитыIP 55
Класс изоляцииF
Номинальный ток (прим.) IN 3~400 В22 A
Класс эффективности мотораIE3
КПД электродвигателя ηm 50% m 75% m 100% 90,1/91,6/91,4 %
Коэффициент мощности cos φ0.8
Номинальная мощность электродвигателя P211 кВт
Обмотка мотора мощностью до 3 кВт230 В Δ/400 В Y, 50 Гц
Обмотка мотора мощностью от 4 кВт400 V Δ/690 V Y, 50 Hz
Варианты монтажа
Монтаж на трубопроводе (при мощности мотора до ≤ 15 кВт)
Монтаж на консолях
Данные для заказа
Вес, прим. m455 кг
ИзделиеWilo
ТипCronoTwin-DL 125/250-11/4
Арт.-№2120984

Размеры и габаритные чертежи

Габаритный чертеж

II отверстие для измерения давления R1/8; III удаление воздуха R1/8

Характеристики

Характеристики

4-полюсный - работа одного насоса

Схема подключения

Схема подключения

Δ: Схема соединения – треугольник

Y: Схема соединения – звезда

Защитный выключатель электродвигателя должен предоставляться заказчиком. Контролировать направление вращения! Для изменения направления вращения поменять местами любые две фазы.

P2 ≤ 3 кВт3~400 В Y
3~230 В Δ
P2 ≥ 4 кВт3~690 В Y
3~400 В Δ

После удаления перемычек возможен запуск Y-Δ.

Данные для заказа

Данные для заказа
ИзделиеWilo
ТипCronoTwin-DL 125/250-11/4
Арт.-№2120984
Номер EAN4048482219165
Цветзеленый
Минимальное количество для заказа1
Единица минимального кол-ва для заказаPCE
Вес (нетто) kg455
Длина (нетто) mm974
Ширина (нетто) mm1042
Высота (нетто) mm620
Вес (брутто) kg500
Длина (брутто) mm1200
Ширина (брутто) mm1200
Высота (брутто) mm801
Вид упаковкиОдноразовый поддон
Свойства упаковкиТранспортировочная упаковка
Штук на поддон1
Количество на один слой1

Описание изделия

Полный текст

Линейный сдвоенный насос с двумя одноступенчатыми центробежными насосами с сухим ротором в общем корпусе с перекидным клапаном для установки в трубах или на фундаменте. Фланцевая заглушка корпуса и консоли предоставляются за отдельную плату. Блочное исполнение с низким уровнем шума и вибрации с промежуточным корпусом и неподвижно присоединенным унифицированным (стандартным) электродвигателем с фланцевым креплением. С не зависящим от направления вращения скользящим торцовым уплотнением в кожухе с принудительным охлаждением и снижающим кавитацию рабочим колесом. Фланцы имеют отверстия R 1/8 для измерения давления. На корпус насоса и промежуточный корпус нанесено катафорезное покрытие.

Материалы
Корпус насосаEN-GJL-250
Промежуточный корпусEN-GJL-250
Рабочее колесоEN-GJL-200
Вал насоса1.4122
Скользящее торцевое уплотнениеAQEGG
Допустимая область применения
Стандартное исполнение для рабочего давления pмакс13 бар (до +140 В°C) бар
16 бар (до +120 В°C) бар
Диапазон температур при макс. температуре окружающей среды +40 В°C-20...+140 В°C (в зависимости от перекачиваемой среды)
Температура окружающей среды, макс.+40 В°C
Подсоединения к трубопроводу
Номинальный внутренний диаметр фланцаDN 125
Фланцы (по EN 1092-2)PN 16
Фланец с отверстием для манометраR 1/8
Габаритная длина l0620 мм
Минимальный индекс эффективности (MEI)
Минимальный индекс эффективности (MEI)≥ 0.40
Насос с макс. диаметром рабочего колеса для определения MEIIL125/270-15/4
Мотор/электроника
Степень защитыIP 55
Класс изоляцииF
Номинальный ток (прим.) IN 3~400 В22 A
Класс эффективности мотораIE3
КПД электродвигателя ηm 50% m 75% m 100% 90,1/91,6/91,4 %
Коэффициент мощности cos φ0.80
Номинальная мощность электродвигателя P211 кВт
Номинальная частота вращения n1,450 об/мин
Вес
Вес, прим. m455 кг
Данные для заказа
Арт.-№2120984
ТипCronoTwin-DL 125/250-11/4
ИзделиеWilo

Купить DL 125/250-11/4 в регионе Ярославль.

Новости и акции компании
© 2000-2026 Все права на разработку принадлежат компании Глобал Энерго Групп. Копирование допускается только с разрешения правообладателей сайта. Политика конфиденциальности. Наш интернет ресурс носит исключительно информационный характер и не является публичной офертой, определяемой положениями Статьи 437 (2) ГК РФ. Для получения точной информации о наличии и стоимости услуг, пожалуйста, обращайтесь к консультантам и менеджерам нашей компании.. Политика конфиденциальности
Москва: +7 (495)
6696898
Санкт-Петербург: +7 (812)
3097686
Ярославль: +7 (4852)
644647