Технический паспорт
Характеристики

Габаритный чертеж

| Мощность | |
|---|---|
| Макс. температура перекачиваемой жидкости T | 50 В°C |
| Температура окружающей среды, макс. T | 40 В°C |
| Максимальное рабочее давление pmax | 16 бар |
| Номинальные внутренние диаметры трубы на стороне всасывания RPS | Rp 2 |
| Номинальные внутренние диаметры трубы с напорной стороны RPD | R 1ВЅ |
| Число секций | 9 |
| Количество резервных насосов | 0 |
| Кол. рабочих насосов | 1 |
| Мотор | |
| Подключение к сети | 3~400 V, 50 Hz |
| Допустимый перепад напряжения | В±10 % |
| Класс изоляции | F |
| Степень защиты | IP 55 |
| Номинальная мощность электродвигателя P2 | 7.50 кВт |
| Номинальный ток 3~400 В, 50 Гц IN | 13.70 A |
| КПД электродвигателя ηm 50% | 89,8 % |
| КПД электродвигателя ηm 75% | 90,5 % |
| КПД электродвигателя ηm 100% | 90,1 % |
| Материалы | |
| Корпус насоса | 1.4301 [AISI304] |
| Вал насоса | 1.4301 [AISI304] |
| Рабочее колесо | 1.4307 [AISI304L] |
| Статическое уплотнение | EPDM |
| Mechanical seal | Q1BE3GG |
| Данные для заказа | |
| Изделие | Wilo |
| Тип | FLA-1 Helix V 1609 PN16 |
| Арт.-№ | 2534424 |
| Вес, прим. m | 187 кг |
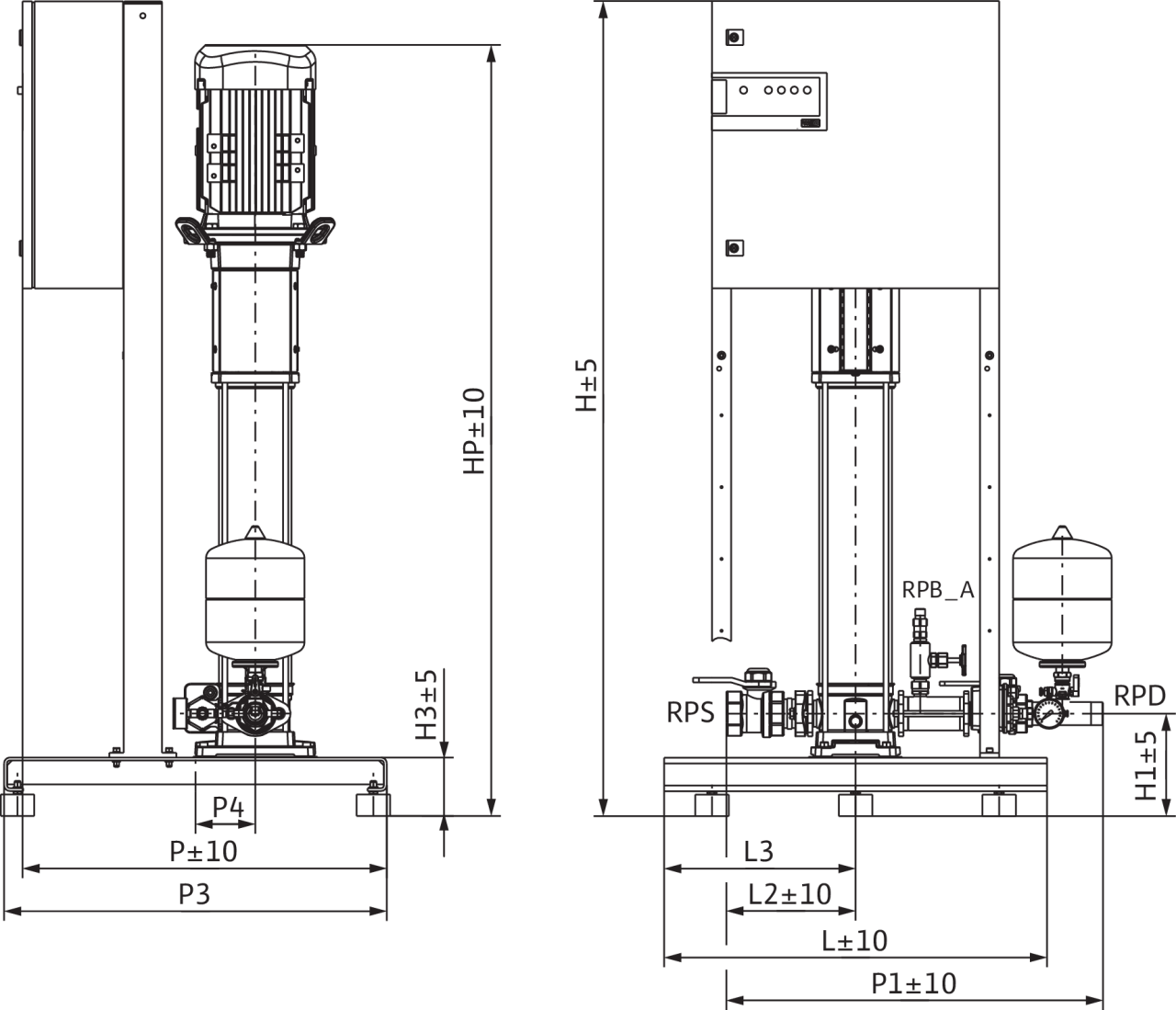
Размеры и габаритные чертежи
Габаритный чертеж

Номинальные внутренние диаметры трубы с напорной стороны RPD
R 1ВЅНоминальные внутренние диаметры трубы на стороне всасывания RPS
Rp 2Размеры H
1705 ммРазмеры H1
215 ммРазмеры H3
125 ммРазмеры HP
1462 ммРазмеры HS
600 ммРазмеры L
800 ммРазмеры L1
862 ммРазмеры L2
270 ммРазмеры L3
400 ммРазмеры LS
600 ммРазмеры P
760 ммРазмеры P1
787 ммРазмеры P3
800 ммРазмеры P4
125 ммХарактеристики
Характеристики

Схема подключения
Схема подключения
Система FLA, прямой пуск

X0: Электроподключение к сети
X1: Подсоединение насоса
X2: Манометрический выключатель/контур датчика предельных значений
X3: защита от недостатка воды; 1, 2 – поплавковый выключатель, датчик уровня; 1, 2, 3 – электроды уровня
X5: беспотенциальный контакт; 1, 2, 3 – вкл. насоса (кроме тестового режима)
X8: беспотенциальный контакт; 1, 2 – готовность к работе; 3, 4 – вкл. насоса; 5, 6, 7 – обобщенная сигнализация неисправности; 8, 9 – контроль аварийного перелива (поплавковый выключатель); 10, 11 – контроль аварийного перелива (сигнализация)
X9: беспотенциальный контакт; 1, 2 – контроль сети питания
X10: Сервисные клеммы (внимание: 230 В перем. тока при запуске насоса)
Данные для заказа
| Данные для заказа | |
|---|---|
| Изделие | Wilo |
| Тип | FLA-1 Helix V 1609 PN16 |
| Арт.-№ | 2534424 |
| Номер EAN | 4048482206608 |
| Цвет | Зеленый/черный/серебристый |
| Минимальное количество для заказа | 1 |
| Единица минимального кол-ва для заказа | PCE |
| Вес (нетто) kg | 187 |
| Длина (нетто) mm | 917 |
| Ширина (нетто) mm | 800 |
| Высота (нетто) mm | 1705 |
| Вес (брутто) kg | 212 |
| Длина (брутто) mm | 1300 |
| Ширина (брутто) mm | 1050 |
| Высота (брутто) mm | 1850 |
| Вид упаковки | Специальная палета |
| Свойства упаковки | Транспортировочная упаковка |
| Штук на поддон | 1 |
| Количество на один слой | 1 |
Описание изделия
Полный текст
Установка повышения давления с непрямым подключением, представляющая собой автоматическую компактную установку для пожаротушения.
Комплектация:
Нормальновсасывающий многоступенчатый высоконапорный центробежный насос в вертикальном исполнении. Рабочие и ведущие колеса, а также ступенчатый корпус из нержавеющей стали. Вся высокоэффективная серия Helix оснащается удобным в обслуживании скользящим торцовым уплотнением (X-Seal) кассетной конструкции и стандартным уплотнением. Гибкий дизайн промежуточного корпуса обеспечивает непосредственный доступ к скользящему торцевому уплотнению. Стандартизированные электродвигатели IE2, 3-фазные, 2-полюсные.
Мембранный напорный бак (объем 8 л), интегрированный обратный клапан, запорные арматуры с всасывающей и напорной стороны (в открытом состоянии опломбированы), манометр, манометрический переключатель для автоматического управления установкой.
В серийном исполнении с защитой насоса без вспомогательной энергии, посредством отбора минимальных объемов через байпас.
Прибор управления FLA для установок пожаротушения согл. DIN14462. Объем функций и соответствие в контексте DIN14462 подтверждены согласно отчету о проверке TÜV.
Прибор управления интегрирован в корпус из листовой стали.
Встроенное реле электродвигателя, предназначенное только для сигнализации неисправностей. В тестовом режиме реле электродвигателя активировано.
Переключатель Ручной режим-Автоматический режим. В автоматическое режиме управление насосом осуществляется от манометрического переключателя, возможно опциональное расширение системы до макс. 8 датчиков (последовательное подключение), например, внешнего включения/выключения, датчиков предельных значений и т.д. (более 8 датчиков - по запросу). Все сигналы датчиков, которые могут привести к пуску насоса, контролируются на обрыв провода и короткое замыкание.
Установка с программируемым таймером для регулярных пробных пусков.
Реле защиты от сухого хода, напр., для подключения поплавкового датчика отсутствия воды в накопительных резервуарах WILO FLA, электродов, манометрических переключателей и т.д. Состояние отсутствия воды сопровождается только сигнализацией неисправности. В тестовом режиме контроль отсутствия воды активирован.
С сигнальными лампами готовности к работе (зеленая), насос ВКЛ. (зеленая), неисправности (красная), запроса насоса (белая), а также беспотенциальными контактами готовности к работе, общей неисправности (возможна подача общего сигнала) и насос ВКЛ.
В контексте основополагающих требований директивы 2004/108/ЕС (электромагнитная совместимость) подходит для применения в промышленных и жилых сферах.
Установка смонтирована на фундаментной раме, готова к подключению к электросети и внешней системе трубопроводов.
Заказчик должен обеспечить, чтобы на каждом стенном гидранте не превышалось давление истечения в 8 бар и давление покоя в 12 бар.
| Мощность | |
|---|---|
| Макс. температура перекачиваемой жидкости T | 50 В°C |
| Температура окружающей среды, макс. T | 40 В°C |
| Число секций | 9 |
| Количество резервных насосов | 0 |
| Кол. рабочих насосов | 1 |
| Мотор | |
| Подключение к сети | 3~400 V, 50 Hz |
| Допустимый перепад напряжения | В±10 % |
| Класс изоляции | F |
| Степень защиты | IP 55 |
| Номинальная мощность электродвигателя P2 | 7.50 кВт |
| Номинальный ток 3~400 В, 50 Гц IN | 13.70 A |
| КПД электродвигателя ηm 50% | 89,8 % |
| КПД электродвигателя ηm 75% | 90,5 % |
| КПД электродвигателя ηm 100% | 90,1 % |
| Материалы | |
| Корпус насоса | 1.4301 [AISI304] |
| Вал насоса | 1.4301 [AISI304] |
| Рабочее колесо | 1.4307 [AISI304L] |
| Статическое уплотнение | EPDM |
| Mechanical seal | Q1BE3GG |
| Подключения | |
| Номинальные внутренние диаметры трубы на стороне всасывания RPS | Rp 2 |
| Номинальные внутренние диаметры трубы с напорной стороны RPD | R 1ВЅ |
| Данные для заказа | |
| Вес, прим. m | 187 кг |
| Тип | FLA-1 Helix V 1609 PN16 |
| Арт.-№ | 2534424 |
Купить FLA-1 Helix V 1609 PN16 в регионе Ярославль.