Москва: +7 (495)
6696898
Санкт-Петербург: +7 (812)
3097686
Ярославль: +7 (4852)
644647
IL-E 40/200-7,5/2
Производитель — Wilo
Оценка (средняя 5)
Технический паспорт Характеристики 2-полюсный Габаритный чертеж Допустимая перекачиваемая среда (другие среды по запросу) Вода систем отопления (согласно VDI 2035) • Водогликолевая смесь (при доле гликоля 20-40 об. % и температуре перекачиваемой...
Запросить консультацию
Заказать продукцию
Характеристики
Характеристики — IL-E 40/200-7,5/2

Технический паспорт

Характеристики

2-полюсный

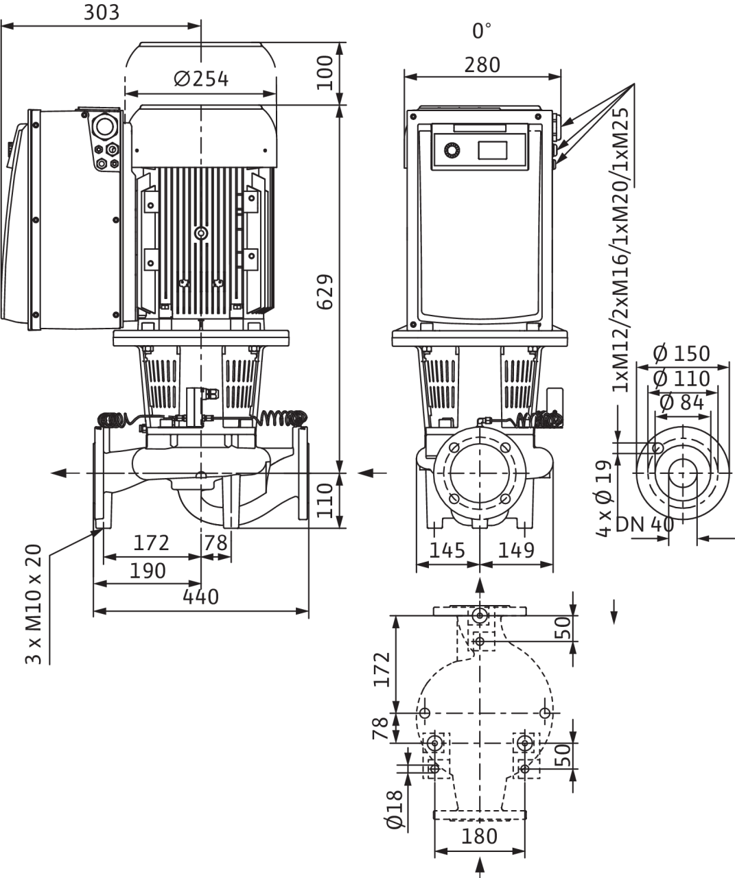
Габаритный чертеж

Допустимая перекачиваемая среда (другие среды по запросу)
Вода систем отопления (согласно VDI 2035)
Водогликолевая смесь (при доле гликоля 20-40 об. % и температуре перекачиваемой среды ≤ 40 В°C)
Охлаждающая и холодная вода
Масляный теплоносительСпециальное исполнение за дополнительную плату
Допустимая область применения
Стандартное исполнение для рабочего давления pмакс13 бар (до +140 В°C) бар
16 бар (до +120 В°C) бар
Специальное исполнение для рабочего давления pмакс.- бар
Диапазон температур при макс. температуре окружающей среды +40 В°C-20...+140 В°C (в зависимости от перекачиваемой среды)
Температура окружающей среды, макс.+40 В°C
Установка в закрытых помещениях
Установка в открытых помещениях-
Подсоединения к трубопроводу
Номинальный внутренний диаметр фланцаDN 40
Фланцы (по EN 1092-2)PN 16
Фланец с отверстием для манометраR 1/8
Материалы
Корпус насосаEN-GJL-250
Промежуточный корпусEN-GJL-250
Рабочее колесоEN-GJL-200
Рабочее колесо (специальное исполнение)G-CuSn10
Вал насоса1.4122
Скользящее торцевое уплотнениеAQEGG
другие скользящие торцевые уплотненияпо запросу
Электроподключение
Подключение к сети3~440 В, 50/60 Гц
3~400 В, 50/60 Гц
3~380 В, 50/60 Гц
Частота вращения N750 - 2900 об/мин
Минимальный индекс эффективности (MEI)
Минимальный индекс эффективности (MEI)≥ 0.40
Насос с макс. диаметром рабочего колеса для определения MEIIL40/220-11/2
Мотор/электроника
Технология мотораАсинхронный мотор
Класс эффективности мотораIE4
Встроенная полная защита мотора
Степень защитыIP 55
Класс изоляцииF
Создаваемые помехиEN 61800-3
ПомехозащищенностьEN 61800-3
Устройство защитного отключения
Число полюсов2
Номинальный ток (прим.) IN 3~400 В13.8 A
Макс. потребляемая мощность P18.7 кВт
Номинальная мощность электродвигателя P27.5 кВт
Варианты монтажа
Монтаж на трубопроводе (при мощности мотора до ≤ 15 кВт)
Монтаж на консолях
Данные для заказа
Вес, прим. m110 кг
ИзделиеWilo
ТипCronoLine-IL-E 40/200-7,5/2
Арт.-№2159315

Размеры и габаритные чертежи

Габаритный чертеж

Характеристики

Характеристики

2-полюсный

Схема подключения

Схема подключения

L1, L2, L3:Подключение к сети: 3~440 В В±10 %, 50/60 Гц; 3~400 В В±10 %, 50/60 Гц; 3~380 В -5 %/+10 %, 50/60 Гц
PE:Подключение заземляющего провода
DDG:Подключение дифференциального датчика давления
In1 (1):Вход фактического значения 0 - 10 В/0 - 20 мА; 2 - 10 В/4 - 20 мА
GND (2):Общий контакт для In1 и In2
+ 24 В (3):Выход постоянного напряжения для внешнего потребителя/датчика. Макс. нагрузка 60 мА
In2:Вход заданного значения 0 - 10 В/0 - 20 мА; 2 - 10 В/4 - 20 мА
MP:Multi Pump, интерфейс для управления сдвоенным насосом
Ext. off:Управляющий вход «Выкл. по приоритету»
Посредством внешнего беспотенциального контакта насос можно включить или выключить (24 В пост. тока/10 мА).
SBM:*беспотенциальная обобщенная сигнализация рабочего состояния (переключающий контакт по VDI 3814)
SSM:*беспотенциальная обобщенная сигнализация неисправности (переключающий контакт по VDI 3814)
AUX:Внешняя смена работы насосов (только в режиме работы -
сдвоенного насоса). Посредством внешнего беспотенциального контакта можно провести смену насосов (24 В пост. тока/10 мА)
Микропереключатель:1: Переключение между рабочим (O) и сервисным (S) режимами)
2: активация/дезактивация меню для блокировки доступа
Опция:IF-модули для подключения к автоматизированной системе управления зданием
<p>* Допустимая нагрузка на контакты SBM и SSM:</p><p>мин.: 12 В пост. тока/10 мА</p><p>макс.: 250 В перем. тока/1 A</p>

Данные для заказа

Данные для заказа
ИзделиеWilo
ТипCronoLine-IL-E 40/200-7,5/2
Арт.-№2159315
Номер EAN4048482663364
Цветзеленый
Минимальное количество для заказа1
Единица минимального кол-ва для заказаPCE
Вес (нетто) kg110
Длина (нетто) mm918
Ширина (нетто) mm294
Высота (нетто) mm553
Вес (брутто) kg126
Длина (брутто) mm1200
Ширина (брутто) mm800
Высота (брутто) mm697
Вид упаковкиОдноразовый поддон
Свойства упаковкиТранспортировочная упаковка
Штук на поддон1
Количество на один слой1

Описание изделия

Полный текст

Центробежный насос с сухим ротором линейного типа для установки в трубах или на фундаменте со встроенным частотным преобразователем для электронного регулирования параметров, в том числе постоянного или переменного перепада давления (Δp-c/Δp-v).

Тип:

  • Одноступенчатый низконапорный центробежный насос
  • Спиральный корпус линейного исполнения (всасывающий и напорный патрубок с одинаковыми фланцами в одной линии), фланец PN 16 – с отверстием согласно EN 1092-2
  • Штуцеры для замера давления (R 1/8) для смонтированных дифференциальных датчиков давления (исполнение ...-R1 без датчика)
  • Серийные корпус насоса и фланец электродвигателя с катафорезным покрытием.
  • Скользящее торцовое уплотнение для перекачивания воды до T=140 В°C. До Tmax= +40 В°C допустимо применение гликолевой примеси с объемной долей от 20 до 40 %.
  • Специальные скользящие торцовые уплотнения для смесей воды/гликоля, отличных от 20–40 % объемной доли гликоля, а также для температуры перекачиваемой жидкости ≤ 40 В°C или других сред, кроме воды (повышенная цена).

Принадлежности:

  • консоли для крепления к фундаменту;
  • IR-монитор;
  • IR-модуль;
  • IF-модуль PLR
  • IF-модуль LON
  • IF-модуль Modbus;
  • IF-модуль BACnet;
  • IF-модуль CAN.
  • Системы регулирования VR-HVAC/CCe-HVAC/SCe-HVAC
  • Комплекты дифференциальных датчиков давления (DDG) 0-10 В для насосов в исполнении ...–R1

Серийное оснащение:

  • Однокнопочная панель управления для следующих функций:
    • Включение/выключение насоса
    • Установка заданного значения или числа оборотов
    • выбор способа регулирования: Δp-c (постоянный перепад давления), Δp-v (переменный перепад давления), ПИД-регулятор, n-постоянный (ручной режим управления);
    • выбор режима работы при совместной работе двух насосов (основной/резервный режим работы, режим совместной работы двух насосов);
    • конфигурация рабочих параметров;
    • Квитирование ошибок
  • Экран насоса для индикации следующих параметров:
    • Способ регулирования
    • заданное значение (напр., перепад давления или частота вращения);
    • сообщения об ошибках и предупреждения;
    • текущие значения (напр., потребляемая мощность, текущее значение датчика);
    • эксплуатационные данные (напр., количество часов работы, расход энергии);
    • данные о состоянии (например, состояние реле SSM и SBM);
    • данные об устройстве (напр., название насоса);

Дополнительные функции:

  • Интерфейсы: управляющий вход «Выкл. по приоритету», «Внешняя смена насосов» (действует только в режиме работы сдвоенного насоса), аналоговый вход 0–10 В, 2–10 В, 0–20 мА, 4–20 мА для ​режима управления (DDC) или дистанционного регулирования заданных значений, аналоговый вход 0–10 В, 2–10 В, 0–20 мА, 4–20 мА для сигнала текущего значения датчика давления, IR-интерфейс для беспроводной связи с устройством управления и сервисного обслуживания – IR-картой памяти/IR-монитором Wilo, разъем для IF-модуля Wilo для связи с автоматизированной системой управления зданием, настраиваемая беспотенциальная система оповещения о неисправностях, эксплуатации и готовности, интерфейс для связи со сдвоенными насосами
  • Трехфазный электродвигатель с частотным преобразователем
  • Встроенная система управления сдвоенными насосами
  • устанавливаемый временной интервал для смены работы насосов (в режиме работы сдвоенного насоса);
  • Встроенная полная защита электродвигателя
  • различные режимы работы для систем отопления (HV) или кондиционирования (AC);
  • Блокировка доступа
  • различные панели управления: стандартная/обслуживание
Материалы
Корпус насосаEN-GJL-250
Промежуточный корпусEN-GJL-250
Рабочее колесоEN-GJL-200
Вал насоса1.4122
Скользящее торцевое уплотнениеAQEGG
Допустимая область применения
Стандартное исполнение для рабочего давления pмакс13 бар (до +140 В°C) бар
16 бар (до +120 В°C) бар
Диапазон температур при макс. температуре окружающей среды +40 В°C-20...+140 В°C (в зависимости от перекачиваемой среды)
Температура окружающей среды, макс.+40 В°C
Подсоединения к трубопроводу
Номинальный внутренний диаметр фланцаDN 40
Габаритная длина l0440 мм
Фланцы (по EN 1092-2)PN 16
Фланец с отверстием для манометраR 1/8
Минимальный индекс эффективности (MEI)
Минимальный индекс эффективности (MEI)≥ 0.40
Насос с макс. диаметром рабочего колеса для определения MEIIL40/220-11/2
Мотор/электроника
Встроенная полная защита мотора
Класс эффективности мотораIE4
Степень защитыIP 55
Класс изоляцииF
Создаваемые помехиEN 61800-3
ПомехозащищенностьEN 61800-3
Подключение к сети3~440 В, 50/60 Гц
3~400 В, 50/60 Гц
3~380 В, 50/60 Гц
Частота вращения N750 - 2900 об/мин
Число полюсов2
Номинальный ток (прим.) IN 3~400 В13.80 A
Макс. потребляемая мощность P18.7 кВт
Номинальная мощность электродвигателя P27.5 кВт
Вес
Вес, прим. m110 кг
Данные для заказа
Арт.-№2159315
ТипCronoLine-IL-E 40/200-7,5/2
ИзделиеWilo

Купить IL-E 40/200-7,5/2 в регионе Ярославль.

Новости и акции компании
© 2000-2026 Все права на разработку принадлежат компании Глобал Энерго Групп. Копирование допускается только с разрешения правообладателей сайта. Политика конфиденциальности. Наш интернет ресурс носит исключительно информационный характер и не является публичной офертой, определяемой положениями Статьи 437 (2) ГК РФ. Для получения точной информации о наличии и стоимости услуг, пожалуйста, обращайтесь к консультантам и менеджерам нашей компании.. Политика конфиденциальности
Москва: +7 (495)
6696898
Санкт-Петербург: +7 (812)
3097686
Ярославль: +7 (4852)
644647