Технический паспорт
Характеристики Переменный ток

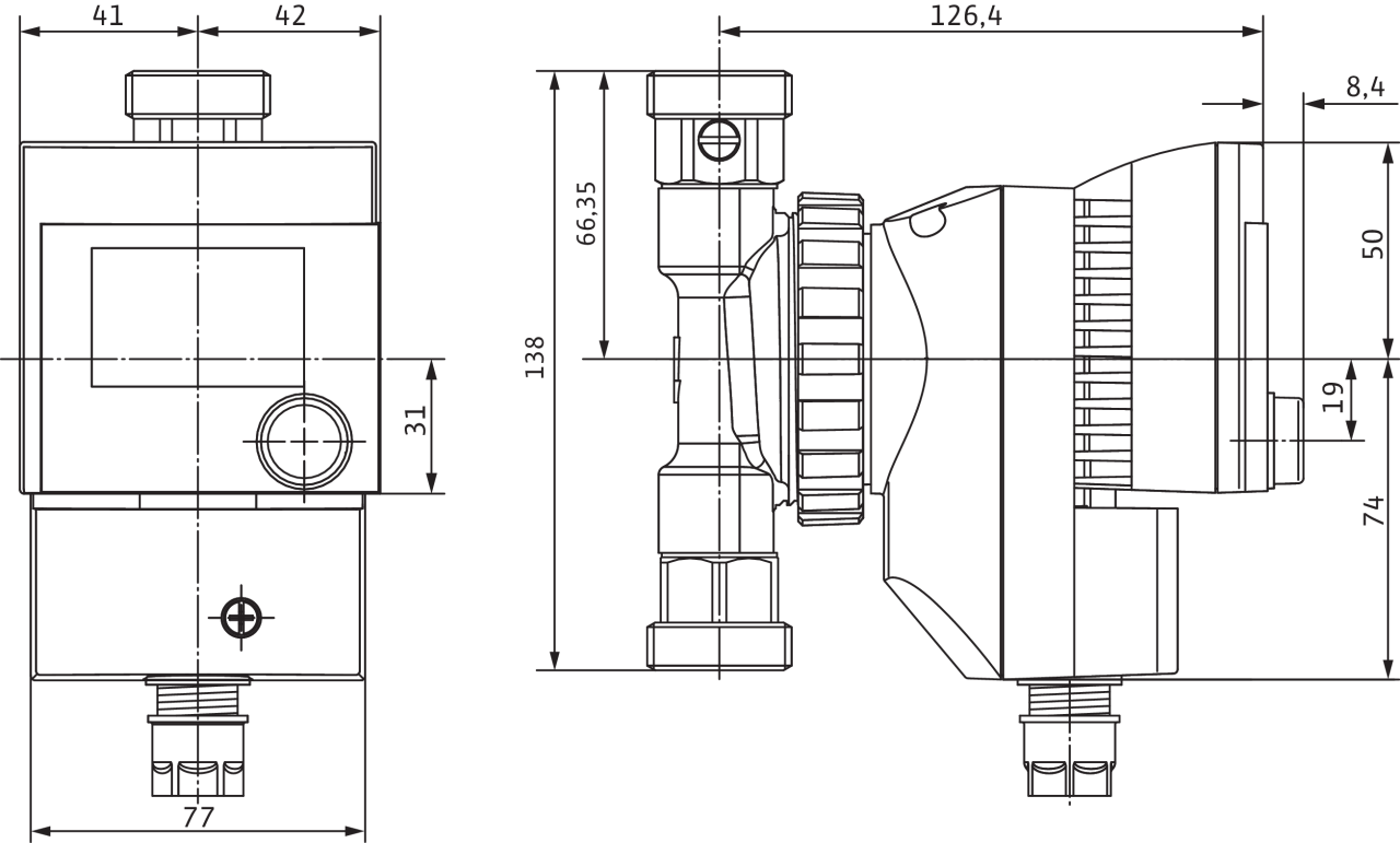
Габаритный чертеж A

Схема подключения 1~230 В

Электродвигатель, устойчивый к токам блокировки
Однофазный электродвигатель (EM), 2-полюсный - 1~230 В, 50 Гц
со встроенным конденсатором
| Допустимая перекачиваемая среда (другие среды по запросу) | |
|---|---|
| Питьевая вода и вода для производства пищевых продуктов согласно Постановлению о питьевой воде 2001 г. (TrinkwV 2001) | • |
| Допустимая область применения | |
| Диапазон температур при использовании в циркуляционных системах ГВС при макс. температуре окружающей среды +40 В°C | +2 ... +65 В°C |
| Диапазон температур при использовании в циркуляционных системах ГВС при макс. температуре окружающей среды +40 В°C в кратковременном режиме 2 ч T | 70 В°C |
| Максимально допустимая общая жесткость жидкости в циркуляционных системах ГВС | 3,21 mmol/l (18 В°dH) |
| Макс. допустимое рабочее давление Pmax | 10 бар |
| Подсоединения к трубопроводу | |
| Резьбовое соединение труб | Rp ВЅ |
| Резьба | G 1 |
| Монтажная длина L0 | 138 мм |
| Мотор/электроника | |
| Создаваемые помехи | EN 61000-6-3 |
| Помехозащищенность | EN 61000-6-2 |
| Степень защиты | IP 42 |
| Класс изоляции | F |
| Подключение к сети | 1~230 V, 50 Hz |
| Частота вращения N | 2700 об/мин |
| Потребляемая мощность P1 | max. 22 Вт |
| Потребление тока I | max. 0,25 A |
| Защита электродвигателя | не требуется (устойчив к токам блокировки) |
| Резьбовой ввод для кабеля PG | 1x9 |
| Материалы | |
| Корпус насоса | Латунь (CuZn40Pb2) |
| Рабочее колесо | Синтетический материал (PPO) |
| Вал насоса | Керамика |
| Подшипники | Графит, пропитанный синтетической смолой |
| Минимальный подпор на всасывающем патрубке во избежание кавитации при температуре перекачиваемой воды | |
| Минимальное давление на входе при температурах жидкости 40/65/110В°C | 0,5 / 2 / 0 м |
| Данные для заказа | |
| Изделие | Wilo |
| Тип | Star-Z 15 TT |
| Арт.-№ | 4110919 |
| Вес, прим. m | 2.33 кг |
Размеры и габаритные чертежи
Габаритный чертеж

Характеристики
Характеристики Переменный ток

Данные для заказа
| Данные для заказа | |
|---|---|
| Изделие | Wilo |
| Тип | Star-Z 15 TT |
| Арт.-№ | 4110919 |
| Номер EAN | 4016322946052 |
| Цвет | зеленый |
| Минимальное количество для заказа | 1 |
| Единица минимального кол-ва для заказа | PCE |
| Вес (нетто) kg | 2.2 |
| Длина (нетто) mm | 150 |
| Ширина (нетто) mm | 138 |
| Высота (нетто) mm | 77 |
| Вес (брутто) kg | 2.3 |
| Длина (брутто) mm | 228 |
| Ширина (брутто) mm | 190 |
| Высота (брутто) mm | 128 |
| Вид упаковки | Картон |
| Свойства упаковки | Упаковка для продажи |
| Штук на поддон | 147 |
| Количество на один слой | 21 |
Описание изделия
Полный текст
Данный циркуляционный насос предусмотрен только для перекачивания питьевой воды.
Циркуляционный насос для систем ГВС (исполнение насоса с мокрым ротором) для одноквартирных домов.
Насос для установки в трубах, устойчивый к токам блокировки электродвигатель, полностью латунный корпус насоса с обратным и шаровым запорным клапаном, рабочее колесо из полифениленоксида (PPO/норил), вал из нержавеющей стали.
Резьба корпуса Rp ВЅ.
Насос со встроенным таймером, контролем температуры и программой распознавания и поддержки схемы термической дезинфекции котла.
| Материалы | |
|---|---|
| Корпус насоса | Латунь (CuZn40Pb2) |
| Рабочее колесо | Синтетический материал (PPO) |
| Вал насоса | Керамика |
| Подшипники | Графит, пропитанный синтетической смолой |
| Допустимая перекачиваемая среда (другие среды по запросу) | |
| Макс. расход Qmax | 0.3 м3/ч |
| Макс. напор Hmax | 1.1 M |
| Подсоединения к трубопроводу | |
| Резьбовое соединение труб | Rp ВЅ |
| Резьба | G 1 |
| Номинальный внутренний диаметр фланца | 20 |
| Монтажная длина L0 | 138 мм |
| Мотор/электроника | |
| Создаваемые помехи | EN 61000-6-3 |
| Помехозащищенность | EN 61000-6-2 |
| Степень защиты | IP 42 |
| Класс изоляции | F |
| Подключение к сети | 1~230 V, 50 Hz |
| макс. частотой вращения; nмакс. | 2700 об/мин |
| Частота вращения N | 2700 об/мин |
| Номинальная мощность электродвигателя P2 | 2,0 Вт |
| Потребляемая мощность 1~230 В P1 | 22 Вт |
| Ток при 1~230В I | 0,25 A |
| Защита электродвигателя | не требуется (устойчив к токам блокировки) |
| Резьбовой ввод для кабеля PG | 1x9 |
| Данные для заказа | |
| Арт.-№ | 4110919 |
| Номер EAN | 4016322946052 |
| Вес, прим. m | 2.3 кг |
| Изделие | Wilo |
| Designation | Wilo-Star-Z 15 TT |
Купить Star-Z 15 TT в регионе Ярославль.