Москва: +7 (495)
6696898
Санкт-Петербург: +7 (812)
3097686
Ярославль: +7 (4852)
644647
Stratos GIGA B 32/1-35/3,0-R1
Производитель — Wilo
Оценка (средняя 5)
Технический паспорт Характеристики Габаритный чертеж Допустимая перекачиваемая среда (другие среды по запросу) Вода систем отопления (согласно VDI 2035) • Водогликолевая смесь (при доле гликоля 20-40 об. % и температуре перекачиваемой...
Запросить консультацию
Заказать продукцию
Характеристики
Характеристики — Stratos GIGA B 32/1-35/3,0-R1

Технический паспорт

Характеристики

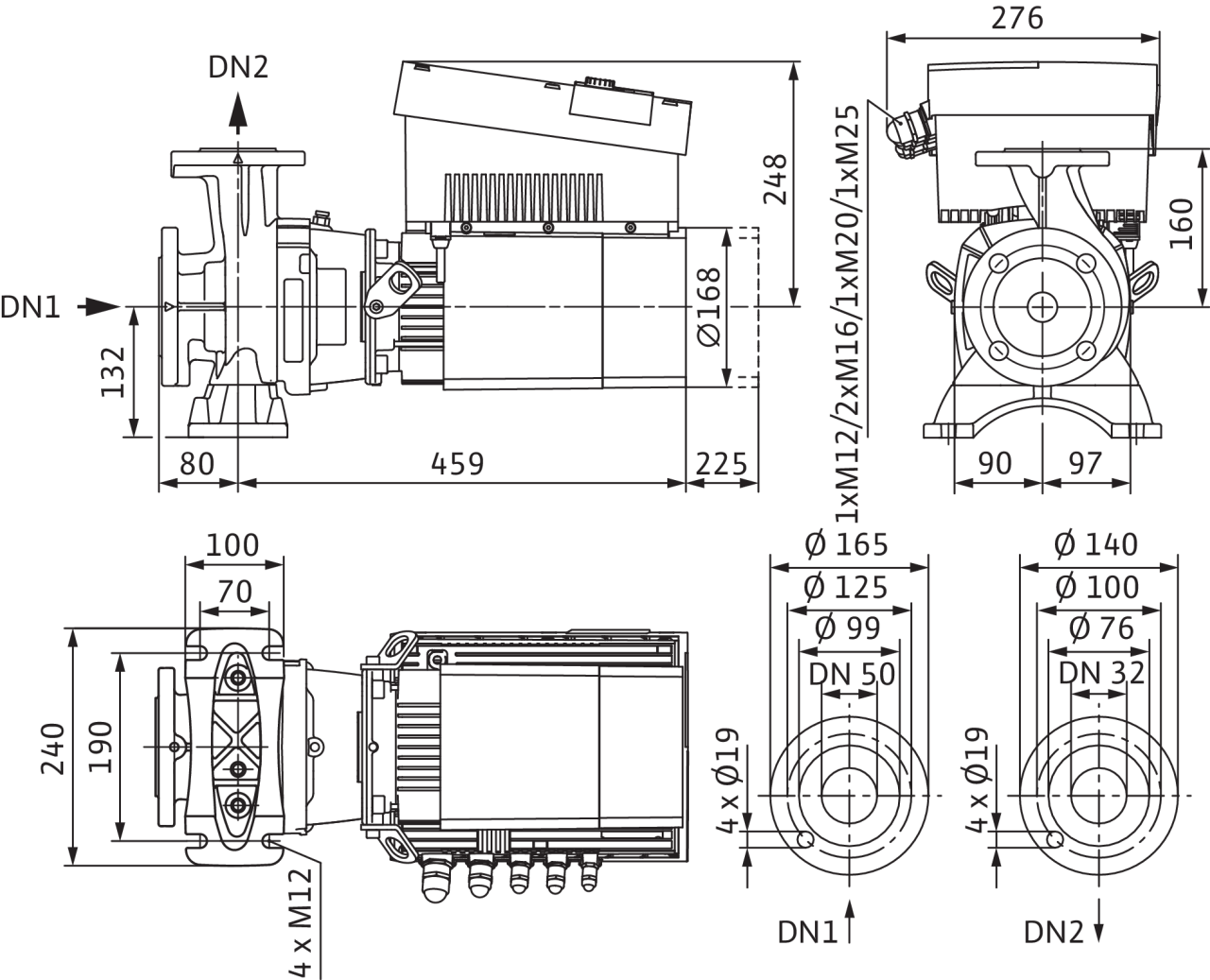
Габаритный чертеж

Допустимая перекачиваемая среда (другие среды по запросу)
Вода систем отопления (согласно VDI 2035)
Водогликолевая смесь (при доле гликоля 20-40 об. % и температуре перекачиваемой среды ≤ 40 В°C)
Охлаждающая и холодная вода
Масляный теплоносительСпециальное исполнение за дополнительную плату
Допустимая область применения
Стандартное исполнение для рабочего давления pмакс16 бар (до +120 В°C) бар
13 бар (до +140 В°C) бар
Диапазон температур при макс. температуре окружающей среды +40 В°C-20...+140 В°C (в зависимости от перекачиваемой среды)
Температура окружающей среды, макс.+40 В°C
Установка в закрытых помещениях
Установка в открытых помещениях-
Подсоединения к трубопроводу
Фланцы (по EN 1092-2)PN 16
Фланец с отверстием для манометраR 1/8
Материалы
Корпус насосаEN-GJL-250
Промежуточный корпусEN-GJL-250
Рабочее колесоPPS-GF40
Рабочее колесо (специальное исполнение)
Вал насоса1.4122
Скользящее торцевое уплотнениеAQ1EGG
другие скользящие торцевые уплотненияпо запросу
Электроподключение
Подключение к сети3~480 V В±10%, 50/60 Hz
3~440 V В±10%, 50/60 Hz
3~400 V В±10%, 50/60 Hz
3~380 V В±10%, 50/60 Hz
Частота вращения N500 - 4600 об/мин
Минимальный индекс эффективности (MEI)
Минимальный индекс эффективности (MEI)≥ 0.70
Мотор/электроника
Технология мотораЭлектронно-коммутируемый мотор
Класс эффективности мотораIE4
Встроенная полная защита мотора
Степень защитыIP 55
Класс изоляцииF
Создаваемые помехиEN 61800-3
ПомехозащищенностьEN 61800-3
Устройство защитного отключения
Номинальный ток (прим.) IN 3~400 В5.9 A
Макс. потребляемая мощность P13.2 кВт
Номинальная мощность электродвигателя P22.7 кВт
Варианты монтажа
Монтаж на трубопроводе (при мощности мотора до ≤ 15 кВт)
Монтаж на консолях
Данные для заказа
Вес, прим. m40 кг
ИзделиеWilo
ТипStratos GIGA B 32/1-35/3,0-R1
Арт.-№2161521

Размеры и габаритные чертежи

Габаритный чертеж

Характеристики

Характеристики

Схема подключения

Схема подключения

L1, L2, L3:Подключение к сети: 3~380 В - 3~480 В (В±10 %), 50/60 Гц
PE:Подсоединение заземляющего провода
DDG:Подсоединение дифференциального датчика давления
In1 (1):Вход фактического значения 0 - 10 В/0 - 20 мА; 2 - 10 В/4 - 20 мА
GND (2):Соединение с землей для In1 и In2
+ 24 В (3):Выход постоянного напряжения для внешнего потребителя/датчика. Макс. нагрузка 60 мА
In2:Вход заданного значения 0 - 10 В/0 - 20 мА; 2 - 10 В/4 - 20 мА
MP:Multi Pump, интерфейс для управления сдвоенным насосом
Ext. off:<p>Управляющий вход «Выкл. по приоритету»</p><p>Посредством внешнего беспотенциального контакта насос можно включить или выключить (24 В пост. тока/10 мА).</p>
SBM:*беспотенциальная обобщенная сигнализация рабочего состояния (переключающий контакт по VDI 3814)
SSM:*беспотенциальная обобщенная сигнализация неисправности (переключающий контакт по VDI 3814)
AUX:Externer Pumpentausch (nur bei Doppelpumpen-betrieb). Посредством внешнего беспотенциального контакта можно провести смену работы насосов (24 В пост. тока/10 мА)
DIP-Schalter:<p>1. переключение между рабочим (O) и сервисным (S) режимами</p>2. активация/дезактивация меню для блокировки доступа
Опция:IF-модуль для подсоединения к автоматизированной системе управления зданием
<p>* Допустимая нагрузка на контакты SBM и SSM:</p><p>мин.: 12 В пост. тока/10 мА</p><p>макс.: 250 В перем. тока/1 A</p>

Данные для заказа

Данные для заказа
ИзделиеWilo
ТипStratos GIGA B 32/1-35/3,0-R1
Арт.-№2161521
Номер EAN4048482600208
ЦветЗелено-серебристый
Минимальное количество для заказа1
Единица минимального кол-ва для заказаPCE
Вес (нетто) kg40
Длина (нетто) mm539
Ширина (нетто) mm253
Высота (нетто) mm337
Вес (брутто) kg53
Длина (брутто) mm795
Ширина (брутто) mm515
Высота (брутто) mm615
Вид упаковкиКартон
Свойства упаковкиТранспортировочная упаковка
Штук на поддон1
Количество на один слой1

Описание изделия

Полный текст

Высокоэффективный блочный насос с электродвигателем EC (КПД за пределами класса IE4 согласно IEC TS 60034-31 Ed.1) и электронной регулировкой мощности в исполнении с сухим ротором. Насос выполнен в качестве одноступенчатого низконапорного центробежного насоса с фланцевым подсоединением и скользящим торцовым уплотнением. Насос Stratos GIGA B предназначен для перекачивания воды систем отопления (согласно VDI 2035), холодной воды и водогликолевых смесей без абразивных веществ в системах отопления, кондиционирования и охлаждения.

Тип:

  • Одноступенчатый низконапорный насос с неразъемным валом блочной конструкции, включая опору на корпусе насоса
  • Размеры фланцев и корпуса согласно EN 733
  • фланцы PN 16 с перфорацией согласно EN 1092-2;
  • Серийные корпус насоса и фланец электродвигателя с катафорезным покрытием
  • скользящее торцовое уплотнение для перекачивания воды до Tмакс. = +140 В°C. До T≤ +40 В°C допускается примесь гликоля от 20 до 40 % объемной доли. Для водогликолевых смесей с долями гликоля >40 % до макс. 50 % объемной доли и при температуре перекачиваемой жидкости от > + 40 В°C до макс. +120 В°C или для других перекачиваемых жидкостей, отличных от воды, требуется предусмотреть наличие альтернативного скользящего торцового уплотнения.
  • Подсоединяемое напряжение 3~480 В В±10 %, 50/60 Гц, 3~440 В В±10 %, 50/60 Гц, 3~400 В В±10 %, 50/60 Гц, 3~380 В -5 % +10 %, 50/60 Гц

Принадлежности:

  • консоли для крепления к фундаменту;
  • Комплекты дифференциальных датчиков давления (DDG) 0-10 В для эксплуатации насоса с видом регулирования Δp-c
  • IR-монитор;
  • IR-модуль;
  • IF-модуль PLR
  • IF-модуль LON
  • IF-модуль Modbus;
  • IF-модуль BACnet;
  • IF-модуль CAN.

Серийное оснащение:

  • Панель управления с технологией «красной кнопки»:
    • Включение/выключение насоса
    • выбор способа регулирования: Δp-c (постоянный перепад давления),ПИД-регулирование, n-постоянный (ручной режим управления);
    • Установка заданного значения или числа оборотов
    • конфигурация рабочих параметров;
    • Квитирование ошибок
  • Экран насоса для индикации следующих параметров:
    • Способ регулирования
    • заданное значение (напр., перепад давления или частота вращения);
    • сообщения об ошибках и предупреждения;
    • текущие значения (напр., потребляемая мощность, текущее значение датчика);
    • эксплуатационные данные (напр., количество часов работы, расход энергии);
    • данные о состоянии (например, состояние реле SSM и SBM);
    • данные об устройстве (напр., название насоса);
    • режим работы (только при применении с разветвленными трубопроводами: основной/резервный режим работы, параллельный режим работы).

Дополнительные функции:

  • аналоговые интерфейсы 0-10 В, 2-10 В, 0-20 мА, 4-20 мА, встроенная система управления сдвоенными насосами для использования в разветвленном трубопроводе, два настраиваемых реле оповещения для сообщений об эксплуатации или неисправностях, настраиваемый порядок действий при аварии в системах отопления и кондиционирования, блокировка доступа к насосу, встроенная полная защита электродвигателя (KLF) с электронной системой отключения, серийные отверстия для отвода конденсата в корпусе электродвигателя (при поставке закрыты), инфракрасный интерфейс для беспроводной связи с управляющим и сервисным устройством – IR-монитором Wilo и IR-накопителем Wilo, разъем для IF-модуля Wilo Modbus, BACnet, CAN, PLR, LON для связи с автоматизированной системой управления зданием.
Материалы
Корпус насосаEN-GJL-250
Промежуточный корпусEN-GJL-250
Рабочее колесоPPS-GF40
Вал насоса1.4122
Скользящее торцевое уплотнениеAQ1EGG
Допустимая область применения
Стандартное исполнение для рабочего давления pмакс16 бар (до +120 В°C) бар
13 бар (до +140 В°C) бар
Диапазон температур при макс. температуре окружающей среды +40 В°C-20...+140 В°C (в зависимости от перекачиваемой среды)
Температура окружающей среды, макс.+40 В°C
Подсоединения к трубопроводу
Фланцы (по EN 1092-2)PN 16
Фланец с отверстием для манометраR 1/8
Минимальный индекс эффективности (MEI)
Минимальный индекс эффективности (MEI)≥ 0.70
Мотор/электроника
Встроенная полная защита мотора
Степень защитыIP 55
Класс изоляцииF
Создаваемые помехиEN 61800-3
ПомехозащищенностьEN 61800-3
Подключение к сети3~480 V В±10%, 50/60 Hz
3~440 V В±10%, 50/60 Hz
3~400 V В±10%, 50/60 Hz
3~380 V В±10%, 50/60 Hz
Частота вращения N500 - 4600 об/мин
Номинальный ток (прим.) IN 3~400 В5.9 A
Макс. потребляемая мощность P13.2 кВт
Номинальная мощность электродвигателя P22.7 кВт
Класс эффективности мотораIE4
Вес
Вес, прим. m40 кг
Данные для заказа
Арт.-№2161521
ТипStratos GIGA B 32/1-35/3,0-R1
ИзделиеWilo

Купить Stratos GIGA B 32/1-35/3,0-R1 в регионе Ярославль.

Новости и акции компании
© 2000-2025 Все права на разработку принадлежат компании Глобал Энерго Групп. Копирование допускается только с разрешения правообладателей сайта. Политика конфиденциальности. Наш интернет ресурс носит исключительно информационный характер и не является публичной офертой, определяемой положениями Статьи 437 (2) ГК РФ. Для получения точной информации о наличии и стоимости услуг, пожалуйста, обращайтесь к консультантам и менеджерам нашей компании.. Политика конфиденциальности
Москва: +7 (495)
6696898
Санкт-Петербург: +7 (812)
3097686
Ярославль: +7 (4852)
644647