Технический паспорт
Характеристики

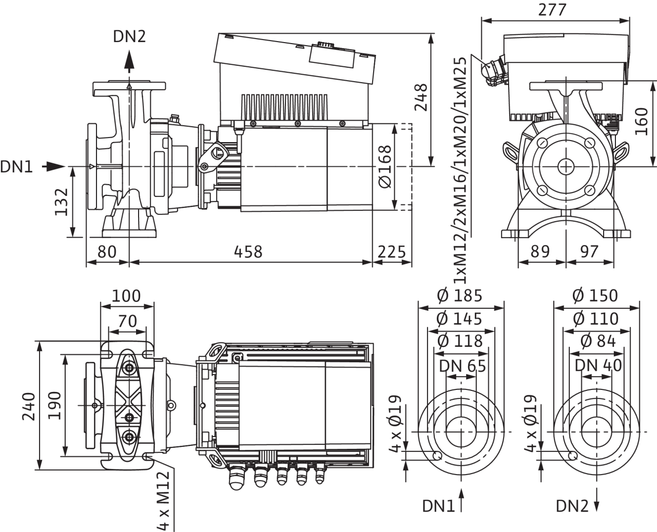
Габаритный чертеж


| Допустимая перекачиваемая среда (другие среды по запросу) | |
|---|---|
| Вода систем отопления (согласно VDI 2035) | • |
| Водогликолевая смесь (при доле гликоля 20-40 об. % и температуре перекачиваемой среды ≤ 40 В°C) | • |
| Охлаждающая и холодная вода | • |
| Масляный теплоноситель | Специальное исполнение за дополнительную плату |
| Допустимая область применения | |
| Стандартное исполнение для рабочего давления pмакс | 16 бар (до +120 В°C) бар 13 бар (до +140 В°C) бар |
| Диапазон температур при макс. температуре окружающей среды +40 В°C | -20...+140 В°C (в зависимости от перекачиваемой среды) |
| Температура окружающей среды, макс. | +40 В°C |
| Установка в закрытых помещениях | • |
| Установка в открытых помещениях | - |
| Подсоединения к трубопроводу | |
| Фланцы (по EN 1092-2) | PN 16 |
| Фланец с отверстием для манометра | R |
| Материалы | |
| Корпус насоса | EN-GJL-250 |
| Промежуточный корпус | EN-GJL-250 |
| Рабочее колесо | PPS-GF40 |
| Рабочее колесо (специальное исполнение) | – |
| Вал насоса | 1.4122 |
| Скользящее торцевое уплотнение | AQ1EGG |
| другие скользящие торцевые уплотнения | по запросу |
| Электроподключение | |
| Подключение к сети | 3~480 V В±10%, 50/60 Hz 3~440 V В±10%, 50/60 Hz 3~400 V В±10%, 50/60 Hz 3~380 V В±10%, 50/60 Hz |
| Частота вращения N | 500 - 4630 об/мин |
| Минимальный индекс эффективности (MEI) | |
| Минимальный индекс эффективности (MEI) | ≥ 0.70 |
| Мотор/электроника | |
| Технология мотора | Электронно-коммутируемый мотор |
| Класс эффективности мотора | IE4 |
| Встроенная полная защита мотора | • |
| Степень защиты | IP 55 |
| Класс изоляции | F |
| Создаваемые помехи | EN 61800-3 |
| Помехозащищенность | EN 61800-3 |
| Устройство защитного отключения | • |
| Номинальный ток (прим.) IN 3~400 В | 6.4 A |
| Макс. потребляемая мощность P1 | 3.6 кВт |
| Номинальная мощность электродвигателя P2 | 3.8 кВт |
| Варианты монтажа | |
| Монтаж на трубопроводе (при мощности мотора до ≤ 15 кВт) | • |
| Монтаж на консолях | • |
| Данные для заказа | |
| Вес, прим. m | 42 кг |
| Изделие | Wilo |
| Тип | Stratos GIGA B 40/1-33/3,0-R1 |
| Арт.-№ | 2161529 |
Размеры и габаритные чертежи
Габаритный чертеж

Характеристики
Характеристики

Схема подключения
Схема подключения

| L1, L2, L3: | Подключение к сети: 3~380 В - 3~480 В (В±10 %), 50/60 Гц |
| PE: | Подсоединение заземляющего провода |
| DDG: | Подсоединение дифференциального датчика давления |
| In1 (1): | Вход фактического значения 0 - 10 В/0 - 20 мА; 2 - 10 В/4 - 20 мА |
| GND (2): | Соединение с землей для In1 и In2 |
| + 24 В (3): | Выход постоянного напряжения для внешнего потребителя/датчика. Макс. нагрузка 60 мА |
| In2: | Вход заданного значения 0 - 10 В/0 - 20 мА; 2 - 10 В/4 - 20 мА |
| MP: | Multi Pump, интерфейс для управления сдвоенным насосом |
| Ext. off: | <p>Управляющий вход «Выкл. по приоритету»</p><p>Посредством внешнего беспотенциального контакта насос можно включить или выключить (24 В пост. тока/10 мА).</p> |
| SBM:* | беспотенциальная обобщенная сигнализация рабочего состояния (переключающий контакт по VDI 3814) |
| SSM:* | беспотенциальная обобщенная сигнализация неисправности (переключающий контакт по VDI 3814) |
| AUX: | Externer Pumpentausch (nur bei Doppelpumpen-betrieb). Посредством внешнего беспотенциального контакта можно провести смену работы насосов (24 В пост. тока/10 мА) |
| DIP-Schalter: | <p>1. переключение между рабочим (O) и сервисным (S) режимами</p>2. активация/дезактивация меню для блокировки доступа |
| Опция: | IF-модуль для подсоединения к автоматизированной системе управления зданием |
| <p>* Допустимая нагрузка на контакты SBM и SSM:</p><p>мин.: 12 В пост. тока/10 мА</p><p>макс.: 250 В перем. тока/1 A</p> | |
Данные для заказа
| Данные для заказа | |
|---|---|
| Изделие | Wilo |
| Тип | Stratos GIGA B 40/1-33/3,0-R1 |
| Арт.-№ | 2161529 |
| Номер EAN | 4048482644806 |
| Цвет | Зелено-серебристый |
| Минимальное количество для заказа | 1 |
| Единица минимального кол-ва для заказа | PCE |
| Вес (нетто) kg | 42 |
| Длина (нетто) mm | 538 |
| Ширина (нетто) mm | 277 |
| Высота (нетто) mm | 380 |
| Вес (брутто) kg | 56 |
| Длина (брутто) mm | 795 |
| Ширина (брутто) mm | 515 |
| Высота (брутто) mm | 615 |
| Вид упаковки | Картон |
| Свойства упаковки | Транспортировочная упаковка |
| Штук на поддон | 1 |
| Количество на один слой | 1 |
Описание изделия
Полный текст
Высокоэффективный блочный насос с электродвигателем EC (КПД за пределами класса IE4 согласно IEC TS 60034-31 Ed.1) и электронной регулировкой мощности в исполнении с сухим ротором. Насос выполнен в качестве одноступенчатого низконапорного центробежного насоса с фланцевым подсоединением и скользящим торцовым уплотнением. Насос Stratos GIGA B предназначен для перекачивания воды систем отопления (согласно VDI 2035), холодной воды и водогликолевых смесей без абразивных веществ в системах отопления, кондиционирования и охлаждения.
Тип:
Принадлежности:
Серийное оснащение:
Дополнительные функции:
| Материалы | |
|---|---|
| Корпус насоса | EN-GJL-250 |
| Промежуточный корпус | EN-GJL-250 |
| Рабочее колесо | PPS-GF40 |
| Вал насоса | 1.4122 |
| Скользящее торцевое уплотнение | AQ1EGG |
| Допустимая область применения | |
| Стандартное исполнение для рабочего давления pмакс | 16 бар (до +120 В°C) бар 13 бар (до +140 В°C) бар |
| Диапазон температур при макс. температуре окружающей среды +40 В°C | -20...+140 В°C (в зависимости от перекачиваемой среды) |
| Температура окружающей среды, макс. | +40 В°C |
| Подсоединения к трубопроводу | |
| Фланцы (по EN 1092-2) | PN 16 |
| Фланец с отверстием для манометра | R |
| Минимальный индекс эффективности (MEI) | |
| Минимальный индекс эффективности (MEI) | ≥ 0.70 |
| Мотор/электроника | |
| Встроенная полная защита мотора | • |
| Степень защиты | IP 55 |
| Класс изоляции | F |
| Создаваемые помехи | EN 61800-3 |
| Помехозащищенность | EN 61800-3 |
| Подключение к сети | 3~480 V В±10%, 50/60 Hz 3~440 V В±10%, 50/60 Hz 3~400 V В±10%, 50/60 Hz 3~380 V В±10%, 50/60 Hz |
| Частота вращения N | 500 - 4630 об/мин |
| Номинальный ток (прим.) IN 3~400 В | 6.4 A |
| Макс. потребляемая мощность P1 | 3.6 кВт |
| Номинальная мощность электродвигателя P2 | 3.8 кВт |
| Класс эффективности мотора | IE4 |
| Вес | |
| Вес, прим. m | 42 кг |
| Данные для заказа | |
| Арт.-№ | 2161529 |
| Тип | Stratos GIGA B 40/1-33/3,0-R1 |
| Изделие | Wilo |
Купить Stratos GIGA B 40/1-33/3,0-R1 в регионе Ярославль.