Москва: +7 (495)
6696898
Санкт-Петербург: +7 (812)
3097686
Ярославль: +7 (4852)
644647
TP 100E190/39
Производитель — Wilo
Оценка (средняя 5)
Технический паспорт Характеристики Wilo-Drain TP 100 с номинальной мощностью электродвигателя от 3,9 кВт - 50 Гц - Число полюсов: 4 Характеристики согласно ISO 9906, приложение A Агрегат Макс. напор H max 12.0 M Макс. расход Q max 160.0 м3/ч Оптимальный...
Запросить консультацию
Заказать продукцию
Характеристики
Характеристики — TP 100E190/39

Технический паспорт

Характеристики Wilo-Drain TP 100 с номинальной мощностью электродвигателя от 3,9 кВт - 50 Гц - Число полюсов: 4

Характеристики согласно ISO 9906, приложение A

Агрегат
Макс. напор Hmax12.0 M
Макс. расход Qmax160.0 м3/ч
Оптимальный напор Hopt6.0 M
Оптимальный расход Qopt96.0 м3/ч
Напорный патрубокDN 100
Фланцы (по EN 1092-2) PNPN 10
Максимальное рабочее давление pmax1.3 бар
Свободный сферический проход95 мм
Режим работы (в погруженном состоянии)S1
Режим работы (в непогруженном состоянии)S1
Макс. глубина погружения20 м
Степень защитыIP 68
Температура перекачиваемой жидкости T+3 ... +40 В°C
Вес, прим. m60.0 кг
Данные мотора
Подключение к сети3~400 V, 50 Hz
Номинальный ток IN12.5 A
Номинальная мощность электродвигателя P23.9 кВт
Потребляемая мощность P15 кВт
Тип пуска«Звезда/треугольник»
Номинальная частота вращения n1,450 об/мин
Число полюсов4
Класс изоляцииF
Рекомендованная частота включений20 1/ч
Макс. частота включений60 1/ч
Допустимый перепад напряженияВ±10 %
Кабель
Длина соединительного кабеля10 м
Тип кабеляNSSH&Оuml;U
сечение кабеля10x1,5 мм2
Тип соединения кабеляРазъемный
Тип штекера-
Оснащение/функции
Поплавковый выключатель-
Защита электродвигателяWSK
ВзрывозащитаATEX
материал
Статическое уплотнениеNBR
Рабочее колесоPUR
Уплотнение со стороны электродвигателяC/Cr
Скользящее торцевое уплотнениеSiC/SiC
Корпус электродвигателя1.4404
Корпус насосаPUR
Вал насоса1.4404 [AISI316L]
Данные для заказа
ИзделиеWilo
Арт.-№2008469
Номер EAN4016322293163
Ценовая группаPG8

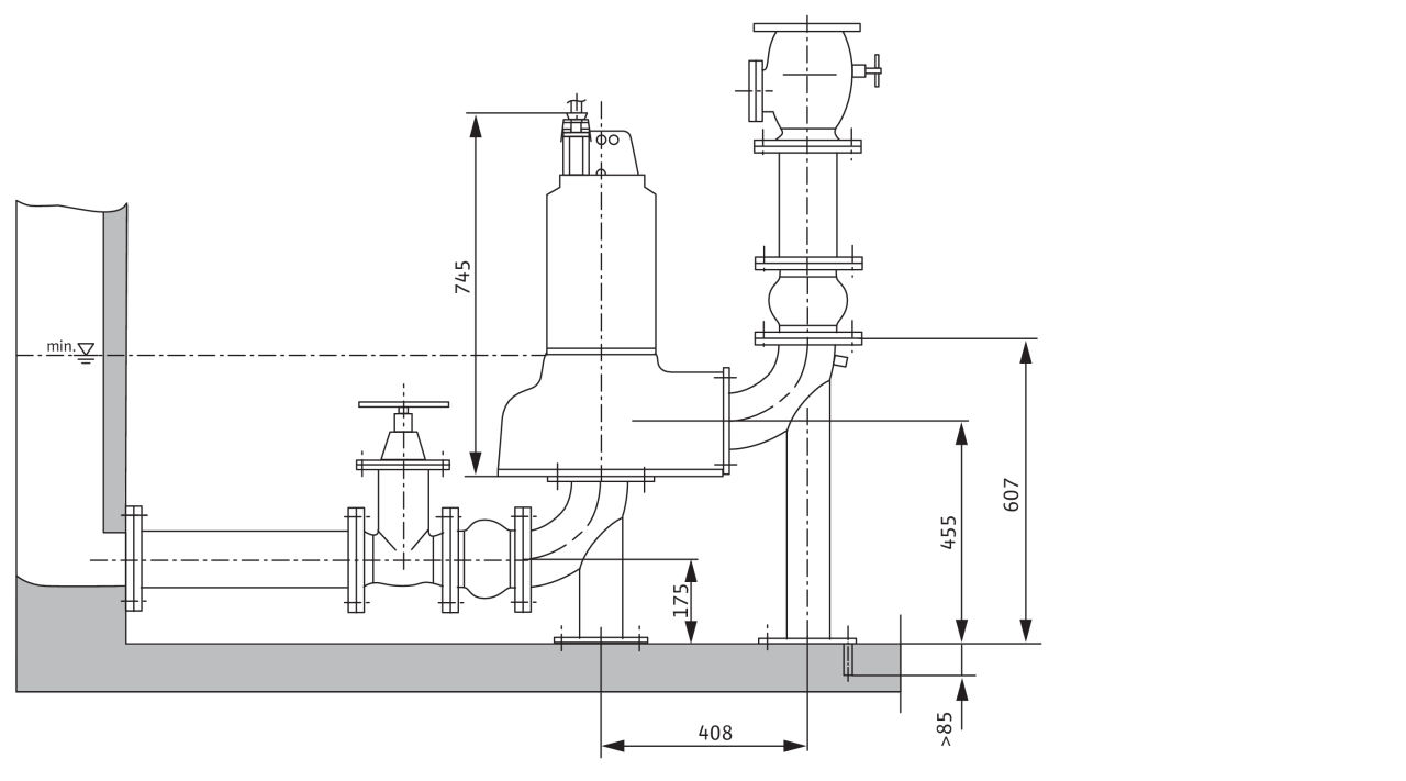
Размеры и габаритные чертежи

Габаритный чертеж

Wilo-Drain TP 100 (P2 от 3,9 кВт) – стационарная установка в погруженном состоянии

Габаритный чертеж

Wilo-Drain TP 100 (P2 от 3,9 кВт) – переносная установка в погруженном состоянии

Габаритный чертеж

Wilo-Drain TP 100 (P2 от 3,9 кВт) – стационарная установка в непогруженном состоянии

Характеристики

Характеристики Wilo-Drain TP 100 с номинальной мощностью электродвигателя от 3,9 кВт - 50 Гц - Число полюсов: 4

Характеристики согласно ISO 9906, приложение A

Данные для заказа

Данные для заказа
Тип насосаTP 100E190/39
Арт.-№2008469
Номер EAN4016322293163
Цветсеребристый/черный
Минимальное количество для заказа1
Единица минимального кол-ва для заказаPCE
Вес (нетто) kg60
Длина (нетто) mm478
Ширина (нетто) mm460
Высота (нетто) mm745
Вес (брутто) kg68.5
Длина (брутто) mm790
Ширина (брутто) mm600
Высота (брутто) mm865
Вид упаковкиОдноразовый поддон
Свойства упаковкиТранспортировочная упаковка
Штук на поддон1
Количество на один слой1

Описание изделия

Полный текст

Полностью погружной дренажный насос для отвода сточных вод для установки в погруженном и непогруженном состоянии, служащий для перекачивания сточных вод с фекалиями. Гидравлический корпус и рабочее колесо из синтетического материала, корпус электродвигателя из нержавеющей стали. Напорный патрубок с горизонтальным выбросом и фланцевым соединением. Электродвигатель с сухим ротором и охлаждающим кожухом в исполнении для трехфазного тока для прямого или звездообразного соединения треугольником с защитой электродвигателя от перегрева, контролем герметичности и сертификатом взрывозащиты. Водостойкий соединительный кабель длиной 10 м со свободным концом.

Агрегат
Напорный патрубокDN 100
Фланцы (по EN 1092-2) PNPN 10
Максимальное рабочее давление pmax1.3 бар
Свободный сферический проход95 мм
Режим работы (в погруженном состоянии)S1
Режим работы (в непогруженном состоянии)S1
Макс. глубина погружения20 м
Степень защитыIP 68
Температура перекачиваемой жидкости T+3 ... +40 В°C
Вес, прим. m60.0 кг
Данные мотора
Подключение к сети3~400 V, 50 Hz
Номинальный ток IN12.5 A
Номинальная мощность электродвигателя P23.9 кВт
Потребляемая мощность P15 кВт
Тип пуска«Звезда/треугольник»
Номинальная частота вращения n1,450 об/мин
Число полюсов4
Класс изоляцииF
Макс. частота включений60 1/ч
Допустимый перепад напряженияВ±10 %
Кабель
Длина соединительного кабеля10 м
Тип кабеляNSSH&Оuml;U
сечение кабеля10x1,5 мм2
Тип соединения кабеляРазъемный
Тип штекера-
материал
Статическое уплотнениеNBR
Рабочее колесоPUR
Уплотнение со стороны электродвигателяC/Cr
Скользящее торцевое уплотнениеSiC/SiC
Корпус электродвигателя1.4404
Корпус насосаPUR
Вал насоса1.4404 [AISI316L]
Оснащение/функции
Поплавковый выключатель-
Контроль протечек в камере электродвигателя
Контроль протечек в камере уплотнений-
Контроль протечек в контрольной камере-
Защита электродвигателяWSK
ВзрывозащитаATEX
Данные для заказа
Арт.-№2008469
Номер EAN4016322293163
Ценовая группаPG8
ИзделиеWilo

Купить TP 100E190/39 в регионе Ярославль.

Новости и акции компании
© 2000-2026 Все права на разработку принадлежат компании Глобал Энерго Групп. Копирование допускается только с разрешения правообладателей сайта. Политика конфиденциальности. Наш интернет ресурс носит исключительно информационный характер и не является публичной офертой, определяемой положениями Статьи 437 (2) ГК РФ. Для получения точной информации о наличии и стоимости услуг, пожалуйста, обращайтесь к консультантам и менеджерам нашей компании.. Политика конфиденциальности
Москва: +7 (495)
6696898
Санкт-Петербург: +7 (812)
3097686
Ярославль: +7 (4852)
644647