Новости и акции компании
Технический паспорт
Конструкция/направление вращения

| Агрегат | |
|---|---|
| Потребляемая мощность P1.1 | 2.2 кВт |
| Макс. сила тяги F | 310 Н |
| Вес макс.* m | 100 кг |
| Взрывозащита | ATEX, FM |
| Классификация взрывозащиты ATEX | II 2G EEx d IIB T4 |
| Классификация взрывозащиты FM | KLASA I, DIV. 1, GRUPE C, D; KLASA II, DIV. 1, GRUPE E, F, G; KLASA III |
| Степень защиты | IP 68 |
| Данные мотора | |
| Тип электродвигателя | T 17-4/8V (Ex) |
| Тип электродвигателя | Погружной электродвигатель согласно стандарту DIN/VDE 0530 (IEC 34) |
| Подключение к сети | 3~400 V, 50 Hz |
| Номинальный ток IN | 5.90 A |
| Пусковой ток - прямой IA | 28 A |
| Пусковой ток - звезда-треугольник IA | 10 A |
| Потребляемая мощность P1 | 3.50 кВт |
| Номинальная мощность электродвигателя P2 | 2.50 кВт |
| Номинальная частота вращения n | 1400 об/мин |
| КПД ηM | 72.00 |
| Коэффициент мощности cos φ | 0.86 |
| Температура перекачиваемой жидкости T | +3 ... +40 В°C |
| Макс. глубина погружения | 20 м |
| Класс изоляции | H |
| Макс. число пусков t | 15 |
| min. switching break t | 3 |
| Starting torque M | 42 Nm |
| Момент инерции массы | 0.0073 кг/м2 |
| Подшипник электродвигателя | 1 радиальный шарикоподшипник, 1 двухрядный угловой шарикоподшипник |
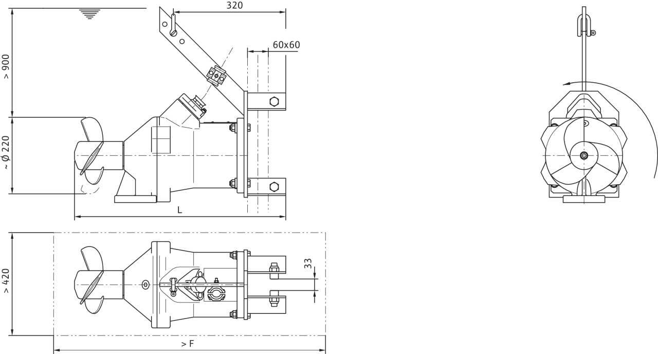
Конструкция

1 = присоединительный фланец для рамы или настенного крепления, 2 = кабель, 3 = пропеллер, 4 = винты слива масла и маслоналивные пробки, а также устройство контроля герметичности камеры уплотнений (в качестве опции), 5 = камера уплотнений, 6 = электродвигатель
| Пропеллер | |
|---|---|
| Тип пропеллера | 3-лопастный пропеллер с самоочищающейся ступицей; изогнут в обратном направлении; благодаря этому защищен от засорения и наматывания |
| Номинальный внутренний диаметр пропеллера | 220 мм |
| Частота вращения пропеллера n | 1,400 об/мин |
| Передаточное число редуктора | 1 |
| Материалы | |
| Корпус электродвигателя | EN-GJL-250 |
| Вал электродвигателя | 1.4021 |
| Статическое уплотнение | FPM |
| Уплотнение со стороны насоса | SiC/SiC |
| Уплотнение со стороны электродвигателя | FPM |
| Пропеллер | 1.4571 |
| Ступица пропеллера | 1.4571 |
| Объем и сорта для заполнения | |
| Смесь камеры уплотнений | Вазелиновое масло |
| Объем для заполнения камеры уплотнений V | 1.30 л |
Размеры и габаритные чертежи
Габаритный чертеж
Wilo-EMU TR 22

Размеры F
755 ммРазмеры L
605 ммВес макс.* m
100 кгКупить TR 22.145-4/8V S в регионе Ярославль.